Dokument

Järngatan 1 - Kontor.pdf

Järngatan 1

Kontor, 360 m2, Lomma

Hyra: Ring för uppgift

Separat kontorsbyggnad om ca 360 kvm fördelad på 12 st kontor/konferensrum samt stor/flexibel öppen yta i mitten på Järngatan 1 i Lommas industriområd

Separat kontorsbyggnad om ca 360 kvm fördelad på 12 st kontor/konferensrum samt stor/flexibel öppen yta i mitten på Järngatan 1 i Lommas industriområde.

Omgivning

Företag i närheten:

Fastigheten ligger bra placerad nära E6:an. I området finns där KåKå, matbutik, restaurang, biltvätt, bensinmack m.m. Med några minuter i bil tar ni er till Lomma centrum och hamn där ni hittar ett bra utbud av trevliga restauranger.

Parkeringsmöjligheter/garage:

Parkering finns.

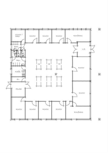
Planlösning

Fastighetsbeteckning:

LOMMA 27:8

Byggår:

1974

Våningsplan:

1 av 1

Antal rum:

13

Planlösning:

Separat kontorsbyggnad om ca 360 kvm fördelad på 12 st kontor/konferensrum samt stor/flexibel öppen yta i mitten. Möjlighet att hyra kallager i byggnad på samma fastighet.

Kommunikationer

Fastigheten är belägen på ett strategiskt läge med närhet till både kollektivtrafik och ringvägar. Busshållplats finns på kort gångavstånd från fastigheten. E6 nås på några minuter med bil från fastigheten.

Övrigt

Lokalen kan nås via:

Goda kommunikationer till E6, butiker och lunchrestauranger på gångavstånd.

Kontraktlängd:

Förhandlingsbart

Tillträde:

Enligt överenskommelse

Hyresinformation:

Ring för uppgift

Kontakta Annonsör

Dan Eliasson

Dan Eliasson