Kristinehedsvägen 5
Sannarp, Halmstad, 261 m2
Verkstadslokal med markport belägen intill E6, Halmstad Nu finns möjlighet att hyra en funktionell och lättillgänglig lokal om261 kvm, idealisk...
Dokument
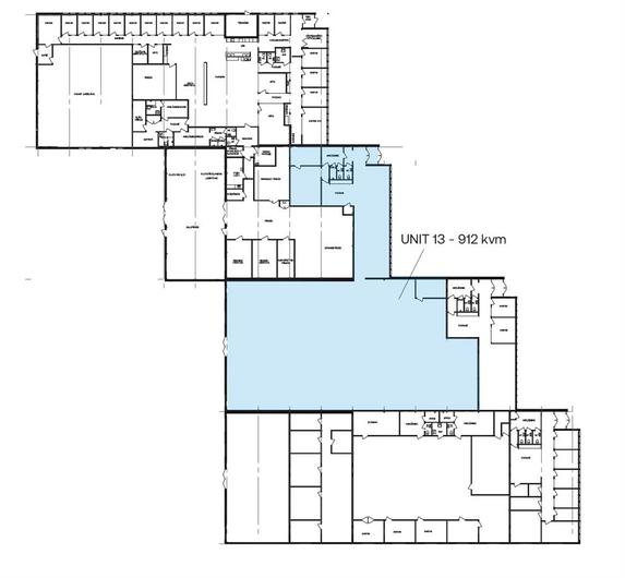
Planritning_Kartongen 3_Unit 13, 912 kvmIndustri/Kontor/Lager, 912 m2, Halmstad, Sannarp
Hyra: Kontakta annonsören
Lättillgänglig lokal om totalt 912 kvm i Sannarp industriområde, med ca 700 kvm lager och 212 kvm kontor. Lokalen lämpar sig väl för verksamheter inom exempelvis logistik, e-handel, teknik, service eller lättare industri.
Lagerdel:
Öppen planlösning
Takhöjd om ca 4,5 meter
Markport för smidig in- och utlastning
Energieffektiv LED-belysning
Kontorsdel:
Indelad planlösning med kontorsrum och mötesrum
Pentry/kök med plats för matgrupp
WC, dusch och omklädningsrum
Möjlighet till uppfräschning och anpassning enligt behov
Fastigheten har fri tillgång från Skyttevägen samt fri parkering precis utanför lokalen, vilket förenklar logistik och skapar god tillgänglighet för både personal och besökare.
Området
Sannarp industriområde ligger 3 kilometer öster om centrala Halmstad på ett strategiskt läge intill E6/E20 och riksväg 25. Området präglas av lättindustri, handel samt lager- och logistikverksamheter. Brett serviceutbud av närservice, butiker, lunchrestauranger och gym finns på gångavstånd. Det finns goda kollektivtrafikförbindelser med buss till centrala Halmstad.
Välkommen att kontakta oss för mer information eller för att boka en visning!
Ahlsell, Optimera, PostNord, Mio och Rejmes Personvagnar AB
Parkeringsmöjligheter/garage:Fri parkering
Skyltläge:Bra exponering av skyltläge mot Skyttevägen
Vägbeskrivning:Direkt anslutning till E6/E20
Kartongen 3
Byggår:1990
Våningsplan:1 av 2
Planlösning:Se planritning bland bilder/PDF.
Goda kollektivtrafikförbindelser med buss till centrala Halmstad
Brett serviceutbud av närservice, butiker, lunchrestauranger och gym finns på gångavstånd
Byggnaden har miljöcertifiering BREEAM In-Use.
Takhöjd:4,5 m
Lokalen kan nås via:Markport och egen kontorsentré
Hiss:Ja
Miljöcertifiering:BREEAM
Den här certifieringen är världens mest använda. Breeam används för befintliga och nybyggda kommersiella byggnader. 2013 kom en svensk version som utgår från svensk lagstiftning, svenska metoder och arbetssätt. Breeam är en heltäckande certifiering med många indikatorer. Här görs bedömningar inom projektledning, energianvändning, inomhusklimat, vattenhushållning, avfallshantering, markanvändning, påverkan på närmiljön, byggmaterial och föroreningar samt byggnadens läge i förhållande till allmänna kommunikationsmedel.
Kontraktlängd:Förhandlingsbart
Kontrakttyp:Förstahandskontrakt
Tillträde:2026-01-01.