Dokument

Planskiss ca 935 kvm, Järnmalmsgatan 1.pdf

Järnmalmsgatan 1

Industri/Lager/Övrigt, 935 m2, Göteborg, Ringön

Hyra: Kontakta annonsören

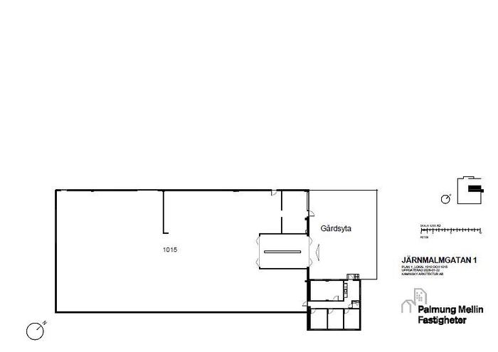
Kombilokal på Ringön om 935 kvm med stor lageryta i markplan. Lokalen har en rejäl port med ca 5,0 meters höjd samt en gårdsyta utanför.

Lokalbeskrivning

Kombilokal med lager/kontor på 935 kvm. Stor lageryta i markplan utan pelare på ca 865 kvm. Lokalen har en rejäl port med ca 5,0 meters höjd. Höjden i lagerytan är mellan 5 och 5,5 meter till underkantbalk.

Utöver lager finns tvätthall/sluss, mötesrum samt en kontorsdel. Kontorsbyggnaden är ca 70 kvm och består av tre separata kontorsrum, ett mötesrum och har kök samt WC.

Tak och väggar i lagerytan är målade i vitt och lokalen är utrustad med dimbar LED-belysning.

Tvätthallen (som även fungerar som sluss) har två motoriserade vikportar och byggdes 2021. Hallen är försedd med ny betongplatta med fall till tvättränna.

Lokalen har även en egen gårdsyta på ca 175 kvm i området utanför portarna (se markering i bifogad planskiss).

Omgivning

Fastigheten har ett mycket centralt läge och ligger på Ringön vid Järnmalmsgatan 1, med närhet till älven, Hisingsbron och de stora trafiklederna E6, E20, E45 och Lundbyleden.

Ringön är ett industriområde på Hisingen som ligger i centrala Göteborg. Området ramas in av Hisingsbron i väst, Tingstadstunneln i öst, Göta älv i söder och Lundbyleden i norr. 

Kommunikationer

Hållplatsen Stenkolsgatan ligger närmast och buss 47 tar dig till Backaplan på 4 minuter. Stationerna Frihamnen och Backaplan trafikeras av flertalet linjer med några minuters färdväg in till centralstationen. 

Parkering

Utöver gårdsytan finns möjligheter till parkering för personal och besökare på fastigheten.

Planlösning

Fastighetsbeteckning:

Tingstadsvassen 22:10

Byggår:

1968

Renoveringsår:

2021

Övrigt

Takhöjd:

5 m

Kontraktlängd:

Långtidskontrakt

Kontrakttyp:

Förstahandskontrakt

Tillträde:

Snabbt tillträde är möjligt.

Kontakta Annonsör

Erik Palmung

Erik Palmung