Storgatan 32

Kontor, 183 - 1003 m2, Uppsala, Centrum

Hyra: 2 600 /m²/år. Moms tillkommer

Representativa kontor intill Resecentrum!
Nu har du möjlighet att driva din verksamhet på 1003 kvm invid Resecentrum i centrala Uppsala.
Lokalen är belägen på plan 3 (820 m²) samt våning 4 (vindsplan 183 m²), båda lokalerna nås med hiss. Vindsplanet nås även från lokalen på plan 3 med en intern trappa .
Ett mycket bra läge med närhet till god service och perfekt pendlarläge!

För mer information och visning kontakta ansvarig mäklare Pernilla Persson!

Omgivning

Omgivning/natur:

Fastigheten ligger intill Uppsala Resecentrum och Uppsala Konsert och Kongress, mitt i city med stort urval av restauranger och handel. Med Resecentrum som granne är kommunikationerna optimala och underlättar besöken för långväga gäster, alltifrån flyg- till tåg- och bussburna resenärer.

Företag i närheten:

Det centrala läger erbjuder ett mycket generöst utbud av all service du behöver.

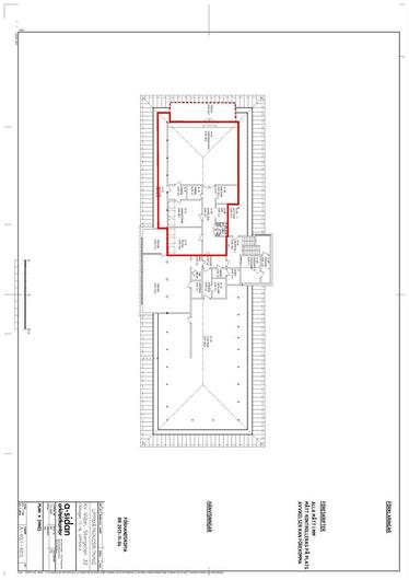
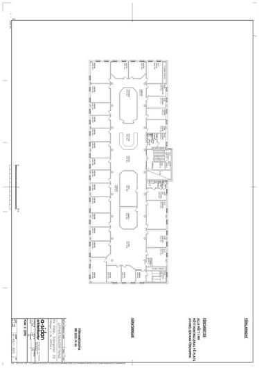
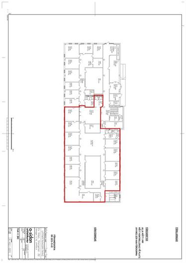
Planlösning

Planlösning:

Lokalen är på totalt 1003 m² och är belägen på plan 3 och 4. Våning 3 inrymmer 820 m² och här möts du av en välkomnande receptionsdel, konferensrum och flexibel planlösning med idag många separata kontorsrum men som kan öppnas upp och anpassas efter hyresgästens behov. Vindslokalen är om 183 m² och erbjuder 2 st konferensrum av varierande storlek. Stora fönster med rikligt ljusinsläpp. Personalutrymmen med kök och många sittplatser samt utgång tilll en terrass. Vindsplanet nås från en interntrappa men kan nås även med hiss från trapphuset.

Kommunikationer

Härifrån är det goda kommunikationer då lokalen ligger intill Resecentrum som är navet för Uppsalas tåg- och busskommunikationer.
Det finns även bra gång och cykelvägar om kring som tar dig både in till centrum och stadens yttre områden.

Övrigt

Utgångshyra kr/m2/år:

2600

Hyresinformation:

Moms tillkommer

Kontakta Annonsör

Sandra Johansson

Sandra Johansson