Kungsängsgatan 17-19

Kontor, 275 - 648 m2, Uppsala, Centrum

Hyra: 2 550 /m²/år. Moms tillkommer

Unikt kontor som måste upplevas på plats - Kungsängsgatan 17-19
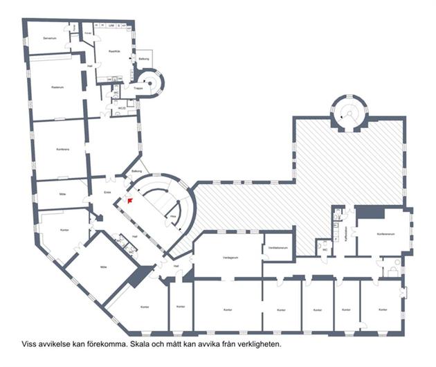
Nu finns chansen att hyra ett av Uppsalas charmigaste kontor som du bara måste uppleva på plats. Kontoret som inrymmer hela 648 m² är belägen i fd Riksbankshuset i byggnad som uppfördes 1903 där mycket av det gamla och gedigna bevarats med stil tillsammans med smarta lösningar som möter upp till dagens krav. Lokalen kan delas av efter behov där den minsta ytan kan bli ca 250-275 m², se ritningsförslag.
Här välkomnas du med en mycket proper huvudentré i hörnet av Kungsängsgatan/Bangårdsgatan och på våning 2 är kontorets egna entré. Hiss finns i trapphuset en halvtrappa upp från porten.

Lokalen bjuder dig genomgående vackra parkettgolv, generös takhöjd (strax under 4 meter), stora eleganta fönster med rikligt ljusinsläpp och en sagolik utsikt mot Slottet från flertalet av rummen och vackra kakelugnar pryder kontorsrummen. Lokalen fördelar sig på ett stort antal kontorsrum i varierande storlekar och även de mindre kontoren upplevs som mycket generösa. Lokalen erbjuder även ett stort kök med utgång till balkong som vetter mot Slottet, en större matsal och minst två generöst tilltagna konferensrum. Sällskapsrum/lounge och ytterligare kök/pentry finns i andra änden av lokalen. Det finns även tillgång till sex toalettutrymmen varav en är inredd med dusch. Alltigenom flexibla ytor och kan nyttjas efter eget behov.
Ett bra läge i centrum med endast några minuters promenad till Resecentrum.

Omgivning

Omgivning/natur:

Kungsängsgatan ligger med absolut närhet till Uppsala centrum samt all tänkbar service och kommunikation

Företag i närheten:

I området finns ett brett utbud av service, bl a ligger ICA Vretgränd i grannfastigheten. I närheten finns även caféer, restauranger, butiker mm.

Planlösning

Planlösning:

Lokalen fördelar sig på ett stort antal kontorsrum i varierande storlekar och även de mindre kontoren upplevs som mycket generösa. Lokalen erbjuder även ett stort kök med utgång till balkong som vetter mot Slottet, en större matsal och minst två generöst tilltagna konferensrum. Sällskapsrum/lounge och ytterligare kök/pentry finns i andra änden av lokalen. Det finns även tillgång till sex toalettutrymmen varav en är inredd med dusch. Alltigenom flexibla ytor och kan nyttjas efter eget behov.

Kommunikationer

En kort promenad tar dig till Uppsala Entré, som är navet för all buss och tågtrafik i Uppsala län. Möjlighet finns att hyra parkeringsplatser i flertalet närliggande parkeringshus samt betalparkeringar utanför porten.

Övrigt

Utgångshyra kr/m2/år:

2550

Hyresinformation:

Moms tillkommer

Kontakta Annonsör

Pernilla Persson

Pernilla Persson