Kungsgatan 54 B

Butik/Kontor, 186 m2, Uppsala, Centrum

Hyra: 991 /m²/år

Bostadsrättslokal med toppenläge på Kungsgatan 54
Nu finns möjlighet att förvärva en bostadsrätt på Kungsgatan 54. Lokalen har stora fönster ut mot gatan vilket ger ett perfekt exponeringsläge. Det är genomgående ljusa ytskikt med en öppen planlösning, personalutrymmen med kontor, pentry, omklädningsrum och två toaletter. En lokal som passar både för butik, kontor, behandling eller dylikt.
Läget är perfekt med närhet till gågatan med ett generöst utbud av service samt ett stenkast från Resecentrum där det är täta förbindelser med tåg och buss.
För mer information och visning kontakta mäklaren.
Välkommen!

Utgångspris: 1 500 000 kr
Avgift: 15 367 kr/månad

Omgivning

Omgivning/natur:

Området är centralt med närhet till Resecentrum och gågatan med ett gediget utbud av service med många butiker, caféer och restauranger.

Företag i närheten:

Det centrala läget erbjuder ett generöst utbud av all service du kan tänkas behöva.

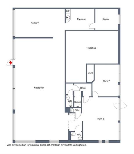
Planlösning

Planlösning:

Lokalen har entré till en öppen yta med stora fönster ut mot gatan. till vänster är det ett mindre lager och personalutrymmen med lunchrum med pentry och kontor. Till höger längst in i lokalen finns en ytterligare yta för kontor/lager, omklädningsrum med dusch, två toaletter . Lokalen passar för butik eller kontor, behandling eller dylikt.

Kommunikationer

Ett mycket bra läge nära Resecentrum som är navet för tåg- och busskommunikationer i Uppsala. Härifrån är det även bra gång och cykelvägar.

Övrigt

Pris/överlåtelseavgift:

1 500 000

Prisinformation:

Högstbjudande

Utgångshyra kr/m2/år:

991

Kontakta Annonsör

Edvin Nicholls

Edvin Nicholls