Kåbovägen 4b

Kontor/Lager/Övrigt, 758 m2, Uppsala, Kåbo

Hyra: Kontakta annonsören

Kontor/Labb/Lager i lugnt och skyddat läge- Kåbo
Nu finns 758 kvm kontor, labb och lagerytor hyresledigt, bekvämt och skyddat beläget i villaområdet i Kåbo. Wc, omklädningsrum och kök/personalrum. Genomgående linoleumgolv och ljusa väggar. Fönster i enbart enstaka kontorsrum. Vatten och avlopp finns draget i alla labbrum. På övre plan samt i källare finns också extra förråd/lagerytor att tillgå. Lastkajer finns för dig som har verksamhet som kräver lättillgänglighet. Evetuella delbara ytor beroende på verksamhet.

Omgivning

Omgivning/natur:

Fastigheten ligger i Kåbo, även kallad professorsstaden, i sydvästra delen av Uppsala med bara 2 kilometer från city, omgiven av flerfamiljshus och villor och nära till Botaniska trädgården, Uppsala Universitetet, Blåsenhusområdet och Akademiska Sjukhuset.

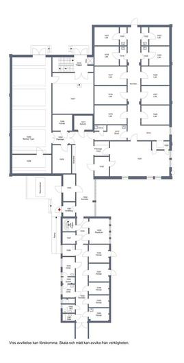
Planlösning

Planlösning:

Kontor, labb och lagerytor i ett mycket bra läge, beläget i villaområdet i Kåbo. Wc, omklädningsrum och kök/personalrum. Genomgående linoleumgolv och ljusa väggar. Fönster i enbart enstaka kontorsrum. Vatten och avlopp finns draget i alla labbrum. På övre plan samt i källare finns också extra förråd/lagerytor att tillgå. Lastkajer finns för dig som har verksamhet som kräver lättillgänglighet. Evetuella delbara ytor beroende på verksamhet.

Kommunikationer

Tät bussförbindelse trafikerar området och det finns fina cykel- och gångvägar. Till Uppsala City är det endast 20 minuters promenad.

Kontakta Annonsör

Pernilla Persson

Pernilla Persson