Dag Hammarskjölds Väg 13

Kontor/Kontorshotell, 398 m2, Uppsala, Kåbo

Hyra: 2 400 /m²/år

Unikt kontor med karaktär i Uppsalas gamla fängelse!
På vindsvåningen i den historiska fastigheten "Tretton" - det gamla fängelset i Uppsala - finns nu en charmig kontorslokal tillgänglig. Lokalen erbjuder en huvudsakligen öppen planlösning, där takstolarna skapar naturliga avgränsningar mellan arbetsplatserna. Vissa av rummen är avgränsade med glasdörrar.
I anslutning till entrén ligger ett trevligt kök och lokalen rymmer även ett stort karakteristiskt konferensrum. Lokalen inrymmer även två toaletter, kapprum samt förrådsytor. Genomgående tegelgolv och synliga takbjälkar ger en rustik och inbjudande känsla. Hiss finns i byggnaden för smidig åtkomst.

Byggnaden uppfördes 1862 och användes som fångvårdsanstalt fram till 1998. Därefter skedde en omfattande renovering och erbjuder idag några av Uppsalas mest karaktärsfulla kontorslokaler. Fastigheten ligger vackert beläget vid Slottet och Slottsparken endast ca 10 minuter från Uppsala resecentrum och stadskärna.

För mer information kontakta Pernilla Persson 018-60 60 05

Omgivning

Omgivning/natur:

Blåsenhusområdet är ett spännande området som erbjuder moderna arbetsplatser i en grönskande miljö, närhet till stadens puls, akademin, kultur samt natur. Uppsala universitet är en stark aktör i området. Här finns en dynamisk miljö där innovation och tradition möts. I omedelbar närhet ligger bl. a. Uppsala slott och botaniska trädgården. Akademiska sjukhuset ligger också i närheten liksom flera av universitetets fakulteter och universitetsbiblioteket Carolina Rediviva.

Företag i närheten:

I närområdet finns flera restauranger, en livsmedelsbutik, gym samt apotek.

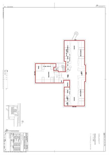
Planlösning

Planlösning:

Kontoret om 398 kvm är belägen högst upp i byggnaden med hiss. En unik vindsvåning med äldre och häftiga detaljer. Det är till större delen en öppen yta med synliga takbjälkar och tegelgolv, flertalet kontorsrum varav ett par har glasdörrar, ett större konferensrum och köksdel i anslutning till entrén. Kapprum och två toaletter samt förrådsutrymmen.

Fastigheten har både fiber- och kopparanslutning. Internetuppkoppling kan tecknas via Primlight för omgående leverans.

Kommunikationer

Goda kommunikationer med ett flertal stadsbussar som trafikerar området samtidigt som det är gång- och cykelavstånd till centrum. Det är lätt att ta sig med bil till lokalen och det går smidigt att ta sig vidare ut på E4:an.

Övrigt

Utgångshyra kr/m2/år:

2400

Kontakta Annonsör

Sandra Johansson

Sandra Johansson