Ekeby Bruk 2N
Flogsta-Ekeby, Uppsala, 130 - 538 m2
Fina lokaler i klassisk bruksmiljö på Uppsala Ekeby I Ekeby Bruks klassiska och rustika fabriksbyggnader erbjuds möjlighet till fina lokaler...
Butik/Kontor/Övrigt, 71 m2, Uppsala, Flogsta-Ekeby
Hyra: Kontakta annonsören
Flogsta är en stadsdel i Uppsala som ligger i västra delen av staden, cirka 3 km från centrum. Området har en blandad bebyggelse med bostadsrätter, hyresrätter, studentbostäder, rad-par och kedjehus. Stadsdelen avgränsas norrut mot Berthåga och Rickomberga av Enköpingsvägen-Luthagsesplanaden.
Företag i närheten:Flogsta centrum med all dess närservice. Mindre dagligvaruhandel i form av Coop Nära ca 500 meter från lokalen och även Folkes livs finns på bekvämt gång-och cykelavstånd.
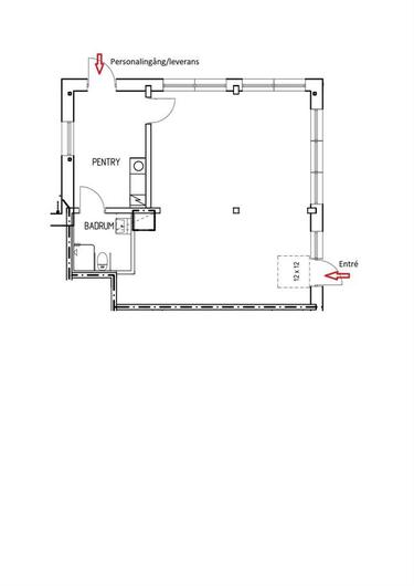
Lokalen välkomnar med en ljus öppen yta och har flertalet skyltfönster i två väderstreck. Inrett med snygg, slitstarkt och ljust laminatgolv samt ljust målade väggar. I anslutning finns ett personalrum/lager med pentry och en rymlig RWC. Grundbelysning finns.
Området trafikeras av tät busstrafik och goda anslutningar till större bilvägar via Luthagsesplanaden till väg 55 samt anslutning till E-4:ans påfarter. Fina gång- och cykelvägar finns till och från Uppsala Centrum samt till Uppsalas alla stadsdelar.