Ekeby Bruk 2N

Kontor, 130 - 538 m2, Uppsala, Flogsta-Ekeby

Hyra: Kontakta annonsören

Fina lokaler i klassisk bruksmiljö på Uppsala Ekeby
I Ekeby Bruks klassiska och rustika fabriksbyggnader erbjuds möjlighet till fina lokaler för förslagsvis kontors- eller utbildningsverksamhet. Lokalerna har en yta på 130 respektive 408 kvm och är belägna på andra respektive tredje våningen. Lokalerna sitter ihop genom en invändig trappa, men möjlighet finns att avgränsa de två lokalerna och därmed hyra dem antingen var för sig eller tillsammans. Hyresvärden är flexibel och kan för rätt hyresgäst vara beredd att anpassa lokalerna till en mängd olika verksamheter.

I Ekeby finns närhet till livsmedelsbutik, restaurang och flertalet gym. Kommunikationsmöjligheterna är goda med både närhet till busshållplats med täta avgångar samt flertalet gång- och cykelvägar in till Uppsalas stadskärna.

Varmt välkommen att kontakta mäklare för visning och mer information.

Omgivning

Omgivning/natur:

Ekeby Bruk ligger bara två kilometer från centrala Uppsala och rymmer ett brett utbud av företag och verksamheter. Det skapar en dynamisk miljö med goda möjligheter till samverkan och synergieffekter.

Företag i närheten:

I området finns diverse service i form av restauranger, Coop Nära etc.

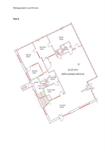
Planlösning

Planlösning:

Lokalerna är i genomgående mycket gott skick med ljusa fräscha ytskikt med en varierad planlösning. Ytorna är belägna i två plan och har en total yta på 538 kvm som går att dela upp i olika enheter där den minsta ytan då utgör 130 kvm. Möjlighet finns att hyra ut ytorna var för sig eller gemensamt. Se bifogade ritningar.

Kommunikationer

UL:s stadsbussar trafikerar sträckan mellan Uppsala Centralstation och Ekeby Bruk. Dessutom erbjuds fina cykelvägar som tar dig till city på ca 10 minuter.

Kontakta Annonsör

Edvin Nicholls

Edvin Nicholls