Dokument

Rosersberg 11-56_Plan 2, 1tr - Planritning.pdf

Stålgatan 15

Kontor/Övrigt, 243 m2, Stockholm

Hyra: Kontakta annonsören

Ljus och anpassningsbar kontorslokal - möjlighet till korttidskontrakt och snabb inflyttning

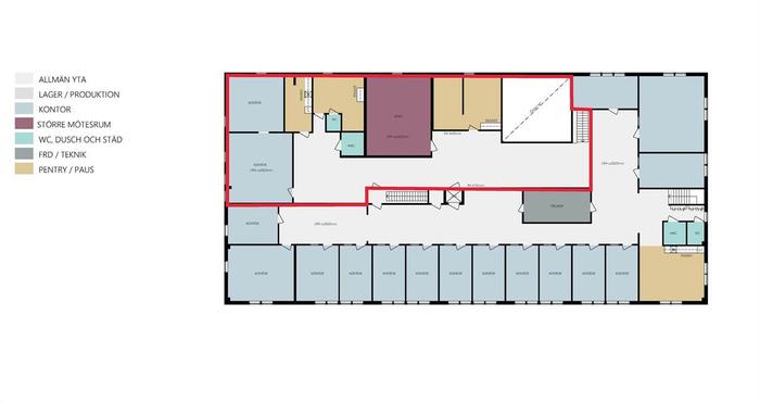
Nu finns möjlighet att hyra en ljus och välplanerad kontorslokal på 243 kvm, bekvämt belägen på första våningen med enkel tillgång via trapphus och hiss. Lokalen har en varierad planlösning med kontorsrum i olika storlekar, ett modernt konferensrum samt praktiska utrymmen såsom förråd, kök/pentry och WC.

Lokalen är flexibel och kan anpassas efter dina behov och önskemål för att passa just din verksamhet. Fastigheten ligger på ett inhägnat område, vilket ger extra trygghet, och erbjuder generösa parkeringsmöjligheter precis intill byggnaden.

Ett idealiskt val för företag som söker en funktionell och anpassningsbar arbetsmiljö med god tillgänglighet och praktiska faciliteter.

Stockholm Nord Logistikcenter är ett industriområde fokuserat på logistik som ligger strategiskt placerat 30 kilometer norr om centrala Stockholm, strax söder om Arlanda flygplats. Området ligger i direkt anslutning till E4 som är den viktigaste transportlänken till och från Stockholm. Enklare serviceutbud med lunchrestauranger finns i närområdet. Det finns goda kollektivtrafikförbindelser med buss och tåg till Stockholm med omnejd.

Omgivning

Företag i närheten:

DHL, PostNord, Optimera, Sellpy, Lidl och Stena Recycling AB

Parkeringsmöjligheter/garage:

Fri parkering

Vägbeskrivning:

Direkt anslutning till E4

Planlösning

Fastighetsbeteckning:

Rosersberg 11:56

Byggår:

2007

Våningsplan:

2 av 2

Planlösning:

Se planritning bland bilder/PDF.

Kommunikationer

Goda kollektivtrafikförbindelser med buss och tåg till Stockholm med omnejd

Service

Närservice:

Enklare serviceutbud med lunchrestauranger finns i närområdet

Övrigt

Lokalen kan nås via:

Gemensamt trapphus med hiss

Hiss:

Ja

Kontraktlängd:

Förhandlingsbart

Kontrakttyp:

Förstahandskontrakt

Tillträde:

Omgående

Kontakta Annonsör

Nathalie Håkansson

Nathalie Håkansson