Kornhamnstorg 49
Gamla Stan, Stockholm, 57 m2
Butikslokal med mycket bra läge i Gallerian Passagen på Kornhamnstorg 49. Både område och galleria är mycket vältrafikerat med starka...
Kontor, 290 m2, Stockholm, Gamla Stan
Hyra: 4 780 /m²/år
En mycket ljus och fräsch kontorslokal om 290 kvm belägen på andra våningen på den trivsamma adressen Österlånggatan 43! Garageplatser tillgängliga med laddstolpe!
Byggnaden är uppförd på 1960-talet och framstår därför som modern i området och med faciliteter.
Lokalen är belägen i en fastighet på en vältrafikerad gågata med mycket rörelse. En trevlig promenadgata med gott om mysiga restauranger och caféer. På andra sidan fastigheten finner vi Skeppsbron. Goda kommunikationer till fastigheten med busshållsplats bakom huset på Skeppsbron..
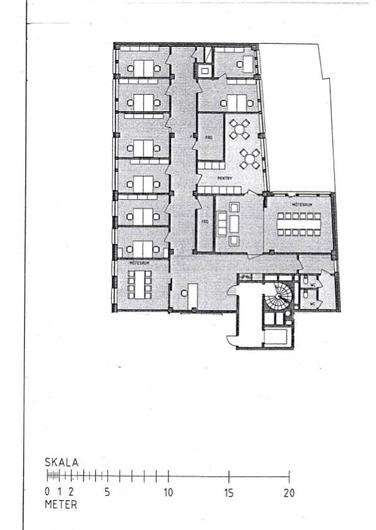
Lokalen nås via fastighetens huvudentré med en rymlig och modern hiss som leder upp till lokalen. För den bilburne som parkerar i garaget kan man ta hissen från garaget direkt upp till lokalen. Här möter en öppen "touchdown" yta upp för besökare att slå sig ned på. Vidare in består lokalen utav ett antal olika rum i varierande storlekar. Vissa av rummen är större och lämpar sig mycket väl som konferensrum, såväl som arbetsrum för ett par medarbetare.
Lokalen har två W/C och ett välutrustat och rimligt kök, med gott om plats för sittyta. I lokalen finns också gott om förvaringsutrymmen.
Mycket fint ljusinsläpp med gott om fönster, och en mekanisk ventilation med kyla och värme skapar en behaglig och trivsam arbetsmiljö i lokalen.
Dusch finns tillgänglig i fastigheten.
Yta: 290 kvm
Hyra: 115 516 kr/mån ex moms
Fastighetsskatt: 9092 kr/mån
Nextor Group AB
Viktor Ritterstrandh
[email protected]
0736-877397
08-309200
4780