Österlånggatan 43
Gamla Stan, Stockholm, 290 m2
En mycket ljus och fräsch kontorslokal om 290 kvm belägen på andra våningen på den trivsamma adressen Österlånggatan 43! Garageplatser...
Kontor, 59 m2, Stockholm, Gamla Stan
Hyra: 3 845 /m²/år
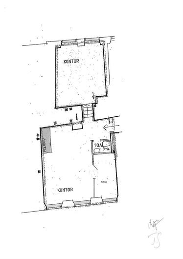
Charmigt kontor i Gamla Stan - Drakens gränd 6
Välkommen till ett kontor med ett svårslaget läge i hjärtat av Gamla Stan. Fastigheten är belägen endast 20 meter från Skeppsbron och dess pulserande stadsliv, samtidigt som närheten till nya Slussen, flertalet busslinjer och all tänkbar service ger utmärkta kommunikationsmöjligheter och bekvämligheter. Ett oslagbart läge för verksamheter som söker både historisk charm och modern tillgänglighet.
Lokalen är belägen på tredje våningen i huset, och nås bekvämt via hiss. Kontorsytan är fördelad över två separata rum med fönster i två väderstreck, vilket ger ett generöst ljusinsläpp. Centralt i lokalen finns ett trivsamt kök som fungerar som en naturlig samlingspunkt. De frilagda takbjälkarna ger karaktär och atmosfär med tydlig förankring i Gamla Stans unika miljö. Här finns även ett öppningsbart fönster med infälld sittbänk, perfekt för stunder av återhämtning. Kontoret har även en bekväm wc med både bad och dusch.
Hyresvärd: Fastighetsbolag
Hyra: 18 903 kr / månad exkl. moms
Fastighetsskatt: 2 360 kr / månad exkl. moms
Hyresgaranti: Deposition
Yta: 59 kvm
Nextor Group
Anders Ölve
Mail: [email protected]
Telefon: 076 340 11 11
3845