Dokument

Jordbromalm 6-89_Ritning.pdf

Lagervägen 5A

Butik/Industri/Kontor, 1735 m2, Stockholm

Hyra: Kontakta annonsören

Modern och flexibel lager- och produktionslokal med ljusa kontor och bekväma faciliteter

Nu finns en unik möjlighet att hyra enstor och modern lokali Jordbro Företagspark, perfekt för lager- eller produktionsverksamhet. Lokalen kombinerarrymliga lagerytormed ljusa och välplanerade kontor, vilket skapar en effektiv och trivsam arbetsmiljö.

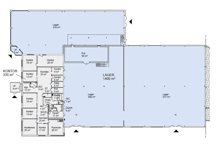
Lokalen i korthet


  • Total yta:1 735 kvm fördelat på:

    • Lager/produktionsyta:1 400 kvm med tre markportar för smidig in- och utlastning.

    • Kontorsyta:300 kvm med ljusa rum och trivsam atmosfär.



  • Faciliteter:Pentry, WC, RWC och omklädningsrum.

  • Takhöjd:5,5 meter i lagret för maximal flexibilitet.

  • Tillgänglighet:Fastigheten är belägen på ettinhägnat områdemed fri parkering vid huvudentrén.

Områdesfördelar

Jordbro Företagspark är enattraktiv och expansiv företagsmiljö, belägen endast25 km söder om centrala Stockholm. Området erbjuder:


  • Strategiskt läge:Direkt anslutning till riksväg 73, som förbinder Nynäshamn med Stockholm och vidare till hela Sveriges trafiknät.

  • Etablerade verksamheter:Området präglas av industri- och logistikföretag samt handel med flera stora aktörer.

  • Service och bekvämligheter:Restauranger, matbutik, gym och apotek i närområdet.

  • Goda kommunikationer:Kollektivtrafik med buss och pendeltåg till Stockholm och omnejd.

Denna lokal är enutmärkt lösning för företag som söker en flexibel och modern verksamhetslokal i ett strategiskt läge.

Kontakta oss för mer information eller för att boka en visning!

Omgivning

Företag i närheten:

Coca-Cola, Bring, TD TechData, Frigoscandia, Dagab, Åhléns och Green Cargo

Parkeringsmöjligheter/garage:

Fri parkering

Planlösning

Fastighetsbeteckning:

Jordbromalm 6:89

Byggår:

2006

Planlösning:

Se bilder/PDF.

Kommunikationer

Goda kollektivtrafikförbindelser med buss och pendel till Stockholm med omnejd

Service

Närservice:

Lokalt serviceutbud med bland annat lunchrestauranger, gym och apotek

Övrigt

Takhöjd:

5 m

Lokalen kan nås via:

3 markportar + Entré

Kontraktlängd:

Förhandlingsbart

Kontrakttyp:

Förstahandskontrakt

Tillträde:

Omgående.

Kontakta Annonsör

Besart Ferizi

Besart Ferizi