Kilowattvägen 4

Industri/Kontor/Lager, 1100 m2, Stockholm

Hyra: Kontakta annonsören

Kraftfull lagerlokal med travers, 7 m i tak & perfekt logistikläge

BESKRIVNING

Nu finns möjlighet att hyra en välplanerad och flexibel lagerlokal på attraktiva Kilowattvägen 4 i Haninge. Ett optimalt läge för verksamheter inom logistik, lager, produktion eller entreprenad som värdesätter smidiga transporter och effektiva flöden.

Fastigheten ligger med mycket god tillgänglighet via Nynäsvägen (väg 73), vilket ger snabb access till Stockholm samt söderut mot Nynäshamn. Området är etablerat för verksamheter med behov av tunga transporter och logistik, vilket gör vardagen både enklare och mer kostnadseffektiv.

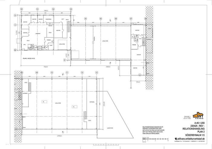
Lokalen omfattar totalt ca 1 100 m² och erbjuder en genomtänkt kombination av lager, kontor och personalutrymmen.

Lagerdel (ca 800 m²)
Rymlig och öppen yta med ca 7 meters takhöjd som möjliggör effektiv lagring och hantering. Utrustad med 5-tons travers, vilket ger stora fördelar för verksamheter med tyngre lyft.
Inlastning sker via 3 stora portar, vilket skapar ett smidigt och effektivt logistikflöde.

Kontor (ca 194 m²)
Funktionella kontorsytor som lämpar sig väl för administration, arbetsplatser och kundmöten.

Personalutrymmen (ca 106 m²)
Fullt utrustad del med kök/matsal samt omklädningsmöjligheter - en komplett lösning för personalen.

Ytterligare fördelar:


  • Möjlighet till uppställningsyta i anslutning till lokalen

  • Generös takhöjd om ca 7 m

  • 5 tons travers

  • 3 stora portar för effektiv in- och utlastning

  • Tydlig och funktionell planlösning

  • Etablerat företagsområde anpassat för lager och industri

 

Tillträde: Q1 2027 (möjlighet till dialog)

Området präglas av ett starkt företagskluster med verksamheter inom fordon, service, bygg och teknik. I direkt närhet finns bland annat Bilia Olofsson Bil AB samt flera bilhallar och verkstäder, tillsammans med bolag som Haki AB och Storstockholms Bärgningstjänst AB. I närområdet finns även större industriaktörer såsom Schneider Electric och Skanska, vilket understryker områdets roll som ett etablerat nav för logistik och industri.

Detta är en lokal som kombinerar strategiskt läge, kapacitet och flexibilitet - perfekt för företag som vill växa i ett av Haninges mest logistikvänliga områden.

 

Kontakta Annonsör

Joanna Eriksson

Joanna Eriksson