Hantverkarvägen 24

Industri/Kontor/Lager, 114 m2, Stockholm, Handen

Hyra: Kontakta annonsören

Kombilokal med kontor, kök och dusch

Beskrivning

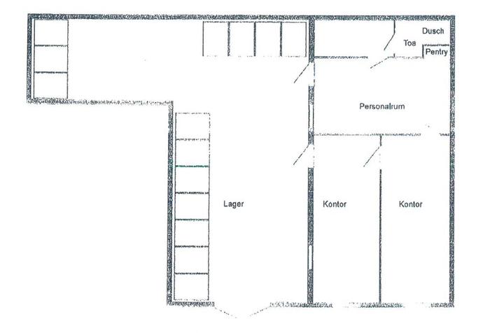
Praktisk och välplanerad lokal om114 kvmmed både kontorsdel och lager, belägen i markplan med egen port. Passar utmärkt för mindre företag inom service, hantverk, e-handel eller liknande verksamheter.

Lokalen består av två kontorsrum, personalrum med pentry, wc med dusch samt lagerdel med port. Tack vare fönster i flera väderstreck upplevs lokalen som ljus och trivsam.

Lagerdelen har en generös takhöjd och direktaccess via port, vilket ger smidig in- och utlastning. (Observera att golvbrunn ej finns i lokalen.)

Sammanfattning:


  • 114 kvm kombilokal i markplan


  • Lagerdel med port


  • Två kontorsrum och personalrum


  • Pentry och wc med dusch


  • Ljus lokal med god tillgänglighet


  • Passar service-, lager- och hantverksverksamhet


Lokalen ligger iHaninge företagsområdemed närhet till Nynäsvägen, väg 73 och goda kommunikationer mot Stockholm, Nynäshamn och Tyresö.

LOCUS ADVICE

Locus Advice är ett fastighetskonsultbolag med fokus på kommersiella fastigheter och lokaler.
Vi arbetar med


  • Lokaluthyrning

  • Lokalöverlåtelser 

  • Fastighetsöverlåtelse

  • Transaktionsrådgivning

  • Värdering

  • Projektledning

  • Vi representerar även hyresgäster som vill ha hjälp med sitt lokalsökande.


Genom etablerade samarbeten med både stora och små fastighetsägare har vi tillgång till ett stort utbud av lokaler utöver vad vi kan marknadsföra i vår egen regi. Via dessa samarbeten kan vi med stor sannolikhet hjälpa er hitta den lokal ni söker efter.

Kontakta Annonsör

Christer Sagheim

Christer Sagheim