Dokument

Sigtuna Nordslunda 1-15_Floor plan.pdf

Charles gata 10

Kontor, 817 m2, Stockholm, Arlandastad

Hyra: Kontakta annonsören

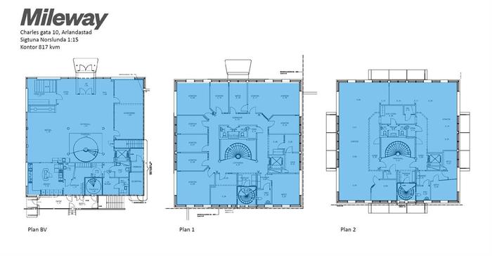
Modern kontorslokal i tre plan i Arlanda Stad

Nu finns möjlighet att hyra en kontorslokal i Arlanda Stad. Lokalen omfattar totalt817 kvmoch är fördelad påtre planmedhissmellan våningarna. Den renoverades2019och har ljusa ytor samt en planlösning som ger en funktionell och trivsam arbetsmiljö.

Lokalen består avkontorsrum, öppet arbetslandskap, konferensrum och reception, vilket ger en flexibel lösning som fungerar för olika typer av verksamheter. Här finns plats både för samarbete i öppna ytor och för mer avskilt arbete i egna rum.

Fastigheten ligger iArlanda Stad, ett område som fortsätter att utvecklas och där flera företag redan etablerat sig. Det finnsparkeringsmöjligheteri anslutning till byggnaden och området hargod tillgänglighetviaE4ochArlanda flygplats. I närområdet finns ävenrestauranger, gym, hotell och annan service.

Lokalen passar företag som sökerett modernt kontor i ett lättillgängligt lägemed närhet till både Stockholm och Uppsala.

Kontakta oss för mer information eller för att boka en visning.

Omgivning

Företag i närheten:

Scandic Arlandastad, Autohero, Bake my day AB

Parkeringsmöjligheter/garage:

Fri parkering

Skyltläge:

Bra skyltläge precis vid E4:an.

Planlösning

Fastighetsbeteckning:

Norslunda 1:15

Byggår:

1998

Renoveringsår:

2019

Planlösning:

Se bland bilder/PDF.

Kommunikationer

Nära anslutning till E4, goda kollektivtrafikförbindelser.

Service

Närservice:

Stort serviceutbud med butiker och restauranger kring Arlandastad

Övrigt

Lokalen kan nås via:

Egen entré

Hiss:

Ja

Kontraktlängd:

Förhandlingsbart

Kontrakttyp:

Förstahandskontrakt

Tillträde:

Enligt överenskommelse

Kontakta Annonsör

Jonatan Westerblom

Jonatan Westerblom