Dokument

Märsta 15_15 LOKAL B_Planlösning
Märsta 15-15_Brochure.pdf

Bristagatan 19

Industri/Kontor/Lager, 3462 m2, Stockholm, Arlandastad

Hyra: Kontakta annonsören

Lagerlokal optimal för distrubution, med lasthus och markport - nyproduktion i Arlandastad, redo för inflytt

Nu finns möjligheten att hyra enmodern och rymlig lagerlokal om 3 462 kvmi en helt ny logistikfastighet i Arlandastad. Lokalen är utformad för att möta de högsta kraven påeffektivitet, tillgänglighet och volymkapacitet, och erbjuder därmed optimala förutsättningar för verksamheter inom logistik, lager och distribution.

Om lokalen

Lokalen har en generös takhöjd på 9,3 meter, vilket möjliggör effektiv hyllförvaring och hantering av större gods. Den är utrustad med hela fem lasthus samt en markport, vilket ger flexibla och effektiva lastningslösningar för både större och mindre transporter. Lokalen kan även anpassas efter specifika behov avseende kontor, entresol eller övrig inredning.

Fakta om lokalen:


  • Yta:3 462 kvm


  • Takhöjd:9,3 meter till balk


  • Lastning:5 lasthus + 1 markport


  • Golvbärighet:5 ton/kvm


  • Energieffektivt:LED-belysning och sprinklersystem


  • Anpassningsbar:Möjlighet till kontor, entresol och personalutrymmen


  • BREEAM-certifiering:Byggnaden certifieras somVery Good


Är ni intresserade av en lokal i en annan storlek? Se flera lediga lokaler i samma byggnadBristagatan 19

Läget - Arlandastad

Med ett oslagbart läge intill E4:an och endast några minuter från Arlanda flygplats, erbjuder Arlandastad fantastiska logistikmöjligheter. Området är fullt utbyggt med restauranger, hotell, handel och god kollektivtrafik. Perfekt för företag med behov av regional, nationell eller internationell distribution.

Därför ska du välja denna lokal:


  • Nyproduktion med hög standard och hållbarhetsprofil


  • Effektiv lastning via flera lasthus och markport


  • Flexibla anpassningsmöjligheter för lagring och kontor


  • Strategiskt läge för snabb och säker distribution


Välkommen att kontakta oss för mer information eller för att boka en visning!

Omgivning

Företag i närheten:

Bring, DB Schenker, Byggmax, Plantagen och Veddesta Distribution

Parkeringsmöjligheter/garage:

Gott om parkeringsplatser på fastigheten

Vägbeskrivning:

Nära anslutning till E4

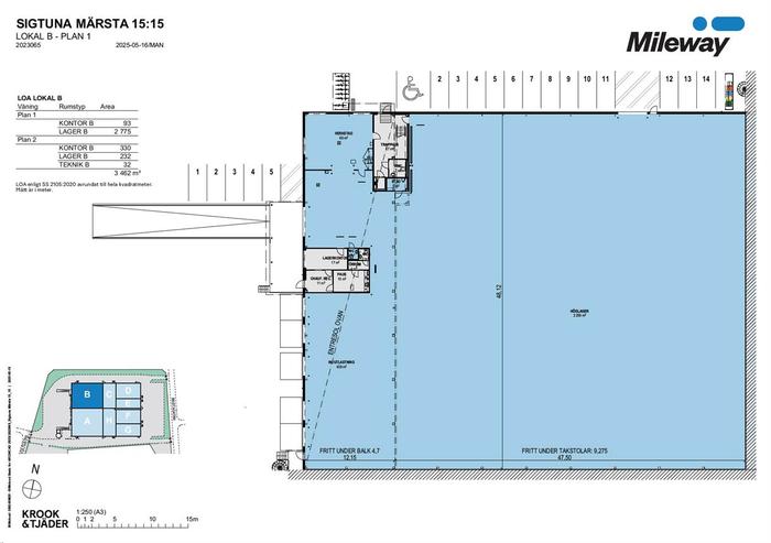
Planlösning

Fastighetsbeteckning:

Märsta 15:15

Byggår:

2024

Planlösning:

Se ritningar bland bilder/ladda ner PDF.

Kommunikationer

Goda kollektivtrafikförbindelser

Service

Närservice:

Stort serviceutbud med butiker och restauranger kring Arlandastad

Övrigt

Takhöjd:

9,3 m

Lokalen kan nås via:

1 markport och 5 lasthus

Ventilation:

FTX

Hiss:

Ja

Miljöcertifiering:

BREEAM

Den här certifieringen är världens mest använda. Breeam används för befintliga och nybyggda kommersiella byggnader. 2013 kom en svensk version som utgår från svensk lagstiftning, svenska metoder och arbetssätt. Breeam är en heltäckande certifiering med många indikatorer. Här görs bedömningar inom projektledning, energianvändning, inomhusklimat, vattenhushållning, avfallshantering, markanvändning, påverkan på närmiljön, byggmaterial och föroreningar samt byggnadens läge i förhållande till allmänna kommunikationsmedel.

Källa

Kontraktlängd:

Förhandlingsbart

Kontrakttyp:

Förstahandskontrakt

Tillträde:

Omgående

Kontakta Annonsör

Jonatan Westerblom

Jonatan Westerblom