Dokument

Planlösning

Malmbrogatan 8

Butik/Kontor/Lager, 250 m2, Kalmar, Kalmar

Hyra: 1200 kr/kvm/år

Chans att hyra lokal i centrala Kalmar med närhet till det mesta!

Här finns nu möjligheten att hyra en lokal i ett mycket eftertraktat läge!

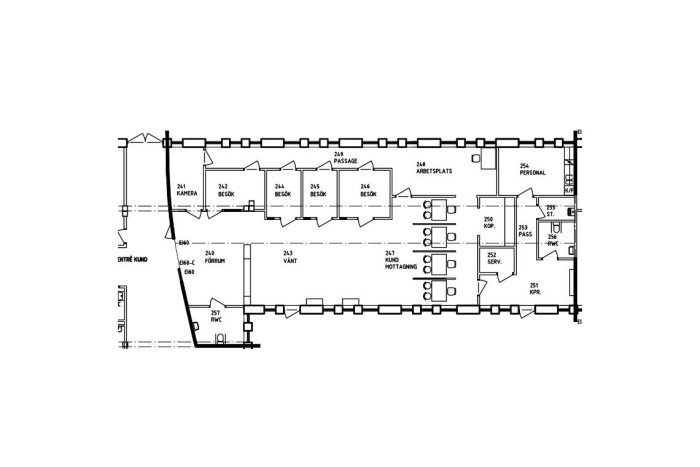
Lokalen ligger i markplan och består i dagsläget bland annat av en stor öppen yta, kök, två toaletter och besöksrum. En lokal med många möjligheter där ni kan skapa en arbetsplats som passar just er verksamhet.

Från lokalen finns tillgång till byggnadens ena öppna innergård. Perfekt för att smidigt gå ut och få frisk luft eller varför inte äta lunchen utomhus.

Det finns möjlighet att hyra garageplats i källaren och flertalet cykelställ runtom fastigheten om du hellre cyklar till jobbet.

Önskas ytterligare yta för förvaring finns förråd att hyra till.

Är detta en lokal för din verksamhet, tveka inte att kontakta oss för mer information och en visning!

Omgivning

Valfisken 2 är en gedigen tegelfastighet i området Malmen i Kalmar och består av tre stora byggnader.

Den här fastigheten är belägen i centrala Kalmar, med enbart några minuters promenad in till stadskärnan. Där finner du bland annat butiker, restauranger, frisörer, gym och apotek. Runt om fastigheten finns en vacker omgivning med fina promenadstråk.

Kommunikationer

I och med fastighetens belägenhet finns Kalmars kommunikationer runt hörnet.

Service

I och med fastighetens belägenhet finns Kalmars kommunikationer runt hörnet.

Kontakta Annonsör

Pierre Trast

Pierre Trast