Dokument

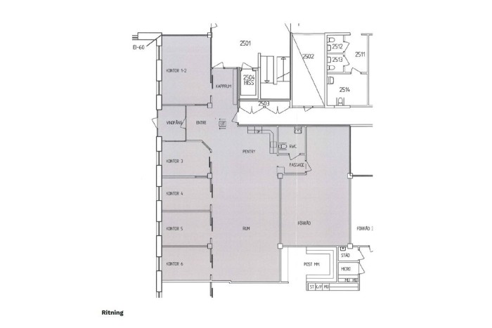
Planlösning

Malmbrogatan 6 B

Butik/Kontor/Lager, 211 m2, Kalmar, Kalmar

Hyra: 1400 kr/kvm/år

Ledig lokal i centrala Kalmar

Nu finns möjligheten att hyra lokal med toppenläge mitt i centrala Kalmar! Lokalen ligger i markplan med egen entré och består av fyra kontor, grupprum/konferensrum, förråd, wc och en stor öppen yta med kök. En mycket fin lokal med bra ljusinsläpp.

Önskas ytterligare yta för förvaring finns förråd att hyra till.

Kontorets läge ger närhet till stadens utbud av restauranger, caféer, gym och butiker. Omgivningen är vacker och vill du ut och promenera på lunchen finns fina promenadstråk precis runt hörnet eller sittbänkar precis utanför entrén om du vill avnjuta en kopp kaffe utomhus.

Möjlighet att hyra till parkering i fastigheten finns och flertalet cykelställ finns runtom byggnaden om du hellre tar cykeln till jobbet. Busshållplats finns i anslutning till fastigheten och tågstation ligger på gångavstånd.

Varmt välkomna att kontakta oss för mer information och visning!

Omgivning

Valfisken 2 är en gedigen tegelfastighet i området Malmen i Kalmar och består av tre stora byggnader.

Den här fastigheten är belägen i centrala Kalmar, med enbart några minuters promenad in till stadskärnan. Där finner du bland annat butiker, restauranger, frisörer, gym och apotek. Runt om fastigheten finns en vacker omgivning med fina promenadstråk.

Kommunikationer

I och med fastighetens belägenhet finns Kalmars kommunikationer runt hörnet.

Service

I och med fastighetens belägenhet finns Kalmars kommunikationer runt hörnet.

Kontakta Annonsör

Pierre Trast

Pierre Trast