Dokument

Planlösning - 7281-1113

Ölandsgatan 5

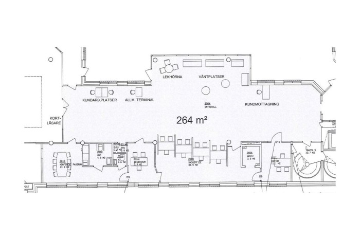
Kontor, 264 m2, Falun, Falun

Hyra: 0 kr/kvm/år

Kontorsfastighet i centrala Falun

Trevlig kontorslokal med öppen planlösning i gatuplan i centrum av Falun. Här finns två mindre kontor/besöksrum, arkivrum, lunchrum samt två wc. Lokalen ansluter till en fin liten innergård att nyttja när vädret tillåter.

P-hus Engelbrekt (Allmänt) finns under fastigheten.

Välkommen med frågor eller för att boka en visning!

Omgivning

Fastigheten är belägen vid den vackra Faluån och granne med Polishuset. Närhet till trevliga restauranger, shopping och hotell.

Kommunikationer

Resecentrum, med all kollektivtrafik samlad, ligger inom några minuters promenadavstånd.

Service

Resecentrum, med all kollektivtrafik samlad, ligger inom några minuters promenadavstånd.

Kontakta Annonsör

Monica Gustavsson

Monica Gustavsson