Yxhammargatan 5-7
Butik/Kontor/Lager - Falun - 600 m2
Välvårdad lokal i bra läge bredvid Byggmax, i dagsläget består lokalen av en större butiksyta, lager om ca 150 kvm, kontor samt personalutrymmen. Lokalen kan anpassas efter ny hyresgästs behov.
Butik/Kontor/Lager - Falun - 600 m2
Välvårdad lokal i bra läge bredvid Byggmax, i dagsläget består lokalen av en större butiksyta, lager om ca 150 kvm, kontor samt personalutrymmen. Lokalen kan anpassas efter ny hyresgästs behov.
Butik/Industri - Falun - 500 - 1500 m2
Med beräknat tillträde vid under 2027 finns möjligheten att tillsamans med oss skapa er nästa lokal. En hyresgäst till grannlokalen inom segementet B2B/B2C finns redan kontrakterad och den yta som...
Industri/Kontor - Falun - 915 m2
Tillfälle att förvärva central industrifastighet i Falun. På Zettergrens väg 10 återfinns fastigheten Vägverket 4. Fastigheten omfattar 4677 kvm med uthyrningsbar area om ca 915 kvm. Fastigheten är till hälften...
Kontor/Lager - Falun - 250 m2
Trevlig kontorslokal i eget hus på Ingarvet i Falun. Parkering i anslutning till entre. Mycket bra läge i området.
Kontor/Kontorshotell - Falun - 289 - 463 m2
Välhållna kontor med stora öppna ytor, lokalen går enkelt att dela upp på fler enheter. Flera konferensrum och toaletter. Gott om parkeringsplatser, separat p-avtal tecknas.
Kontor - Falun - 500 m2
Kontorslokaler vid infarten till Ingarvet. Lämpligt för 20-40 personer.
Kontor - Falun - 331 m2
Välkommen till en kontorslokal med hög standard. Öppna och anpassningsbara ytor. Lokalen ligger i tidningshuset.
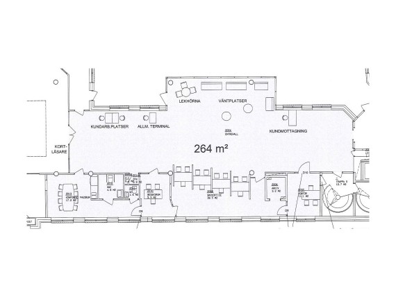
Kontor - Falun - Falun - 264 m2
Kontorsfastighet i centrala Falun Trevlig kontorslokal med öppen planlösning i gatuplan i centrum av Falun. Här finns två mindre kontor/besöksrum, arkivrum, lunchrum samt två wc. Lokalen ansluter till en fin...
Industri/Kontor/Lager - Falun - 2089 - 2500 m2
En Stor och öppen lager/Produktionslokal med bra Läge på Ingarvet i Falun. Bra parkeringsmöjligheter samt möjlighet till kontorslokaler i anslutning till Lager.
Kontor - Falun - Falun - 421 m2
Modern kontorslokal i centrum av Falun Vi erbjuder nu en mycket fin och modern kontorlokal på plan 4 om 421 kvm i centrum av Falun. Här finns kontorslandskap, konferensrum, trevliga...
Butik/Kontor/Lager - Falun - 825 m2
Butikslokal med lager alternativt kontor med lager. ca 200 kvm kontor på plan 2, ca 630 kvm butik/lager i bottenplan.
Industri/Kontor/Lager - Falun - 490 m2
Lager/produktionslokal alternativt butikslokal/lager med personalutrymmen och kontor. Stor vikport. Lokalen har separat kundentré.
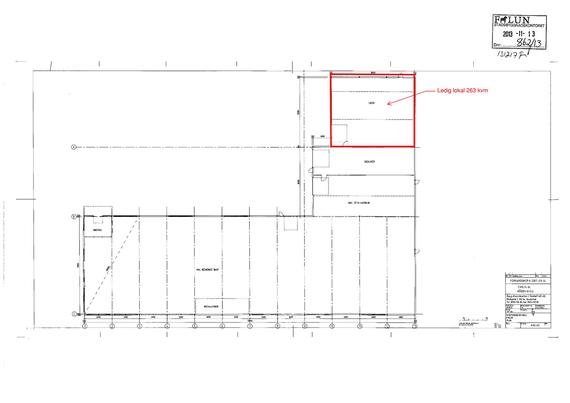
Lager - Falun - 263 m2
Lager om ca 263 kvm.
Butik/Kontor/Lager - Falun - 188 m2
Lokalen har i dagsläget ca 100 kvm lager, 30 kvm kontor, personalutrymmen och omklädningsrum.
Industri/Kontor/Lager - Falun - 242 m2
Lager/kontorslokal med tillhörande inhängnad utomhusyta med ett naturskönt läge intill sjön Runn vid Roxnäs i Falun.
Industri/Kontor/Lager - Falun - 237 m2
En bra lagerlokal på Ingarvet, Falun.