Kungsgatan 61

Kontor/Kontorshotell, 76 m2, Eskilstuna

Hyra: Kontakta annonsören

Kontorsrum i kontorshotellet på Kungsgatan 61
Nu finns det möjlighet att hyra moderna nyckelfärdiga kontorslokaler i Energy Evolution Center i Eskilstuna på Kungsgatan 61.

Energy Evolution Center är en arena för innovativa lösningar inom energi med coworking. Här kan man bygga relationer, byta idéer och lära sig av varandra inom energifrågor. Som hyresgäst får man tillgång till alla öppna event.

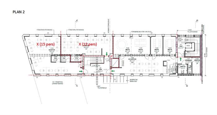
Kontorslokalen på plan 2 disponerar en yta om 76 kvm för max Lokalen har fönster i tre vädersträck vilket skapar ett fantastiskt ljusinsläpp.

Som hyresgäst i Energy Evolution Center får man tillgång till lokalen dygnet runt och tillgång till husets mötesrum med smartboards och teknik för hybridmöten. Det finns även möjlighet att hyra in sig på ytterligare dropdown-platser i huset. I byggnaden finns det snabbt wifi och tillgång till skrivare. Tillgång till te och kaffe finns på varje våningsplan och frukost serveras på onsdagar. Det finns även lånecyklar så att man enkelt kan ta sig runt i stan.

Exempel på företag som sitter i byggnaden är Cloudberry, Eze System, Energikontor Mälardalen, Eskilstuna energi- och miljö och Sustainable Innovation.

Byggnaden är lokaliserad på Kungsgatan 61 ca 5 minuter från Eskilstuna centrum. Området är populärt för företagare och har vuxit de senaste åren, exempel på företag i området är Willys, Länsförsäkringar, Actic och Atea med flera. Tillträde sker enligt överenskommelse, kontakta oss gärna för en visning

Omgivning

Omgivning/natur:

Byggnaden är lokaliserad på Kungsgatan 61 ca 5 minuter från Eskilstuna centrum. Området är populärt för företagare och har vuxit de senaste åren.

Planlösning

Våningsplan:

2

Kommunikationer

Goda busskommunikationer finns i området.

Övrigt

Tillträde:

Enligt överenskommelse

Kontakta Annonsör

Jesper Lind

Jesper Lind