Kungsängsvägen 16

Butik/Industri/Kontor, 1014 m2, Uppsala, Boländerna

Hyra: Kontakta annonsören

Lager/industriytor med tillhörande butik och kontor
Vakant lokal om ca 1014 kvm i Boländerna. Lokalen har fina lagerytor med generös takhöjd i markplan. Intill finns ytor passande för showroom och sällanköpshandel. Lokalen är utrustad med kundentré och kontorsytor på övervåningen. Fina ytskikt i kontorsytorna som nyligen renoverats. Möjlighet för utbyggnad av kontor finns. Denna lokal passar utmärkt för verksamheter inom industri, lager, B2B försäljning m.m.
Uppställningsytorna uppgår till ca 1037 kvm och ligger i direkt anslutning till lokalerna.

Omgivning

Omgivning/natur:

Boländerna är en stadsdel i östra Uppsala och sträcker sig från söder om Strandbodkilen och Fålhagsleden ända bort till Gnistarondellen.
Området har främst en industrikaraktär med flera stora industrier såsom Cytiva, Vattenfall etc. I området finns även handel, både grossist- och konsumenthandel såsom Maskin &Verktyg, Dahls, Bauhaus, Coop, Ikea, Biltema, diverse bilhandel osv.

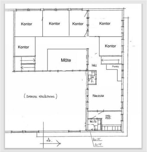
Planlösning

Planlösning:

Lager/industriytor med tillhötande kontor om totalt 1014 kvm. Lokalen består av ca 743 kvm lager och ca 271 kvm ombonade ytor med 2 kontorsplatser i markplan samt personalytor.
Kontorsytorna på plan 2 består av ca 5 kontorsrum och ett konferensrum med tillhörande pentry. Fina ytskikt och rikligt med ljusinsläpp. I anslutning till lokalen finns en val tilltagen uppställnigsyta om ca 1037 kvm varav 200 kvm är utrustat med skärmtak.Lokalen är utrustad med en industriport med möjlighet till ytterligare 2 st portar.

Kontakta Annonsör

Zouhair Ayed

Zouhair Ayed