Dokument

Planritning_Rosersberg 11-34 Rosersberg.pdf

Tallbacksgatan 10

Industri/Lager, 2676 m2, Stockholm

Hyra: Kontakta annonsören

Stor lager- och kontorslokal med lastkajer och markport finns att hyra i Stockholm Nord

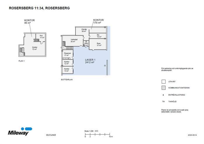
I denna moderna industrifastighet finns nu en flexibel och effektiv lager- och kontorslokal om totalt 2 676 kvm ledig för uthyrning. Lokalen är uppdelad i 2 412 kvm lageryta och 264 kvm kontor, fördelat på bottenvåning och entresolplan (plan 1).

Lagerdelen har entakhöjd om cirka 8 meteroch är utrustad medtvå lastkajersamten markport, vilket möjliggör enkel och effektiv hantering av gods. De generösa ytorna och den rationella planlösningen gör lokalen lämplig för flera typer av verksamheter inom logistik, produktion eller e-handel.

Kontorsytorna är moderna och funktionella och rymmer bådeöppna arbetsplatser, konferensrum, pentry och WC. Allt är samlat i direkt anslutning till lagret, vilket skapar ett smidigt och samordnat arbetsflöde.

Byggnaden ligger på ettinhägnat och välskött område, med tillgång via grindar ochfri parkering direkt i anslutning till lokalerna.

Fastigheten är en del avStockholm Nord Logistikcenter, ett väletablerat industriområde med logistik i fokus. Läget är optimalt - endast30 km norr om centrala Stockholmoch strax söder omArlanda flygplats. Direkt anslutning tillE4:an, som utgör huvudförbindelsen till och från Stockholm, ger utmärkta kommunikationsmöjligheter för transporter.

I närområdet finns enklare serviceutbud medlunchrestauranger, och området hargoda kollektivtrafikförbindelsermed både buss och tåg till Stockholm och omgivande orter.

Kontakta oss för mer information eller för att boka en visning av lokalen.

Omgivning

Företag i närheten:

DHL, PostNord, Optimera, Sellpy, Lidl och Stena Recycling AB

Parkeringsmöjligheter/garage:

Parkering finns på fastigheten

Vägbeskrivning:

Direkt anslutning till E4

Planlösning

Fastighetsbeteckning:

Rosersberg 11:34

Byggår:

1995

Våningsplan:

1 av 2

Planlösning:

Se planritning bland bilder/PDF.

Kommunikationer

Goda kollektivtrafikförbindelser med buss och tåg till Stockholm med omnejd

Service

Närservice:

Enklare serviceutbud med lunchrestauranger finns i närområdet

Övrigt

Takhöjd:

8 m

Lokalen kan nås via:

2 lastkajer, samt 1 markport

Kontraktlängd:

Förhandlingsbart

Kontrakttyp:

Förstahandskontrakt

Tillträde:

Enligt överenskommelse

Kontakta Annonsör

Jonatan Westerblom

Jonatan Westerblom