Dokument

Fogden 6_Drawings-Site plans (1).pdf

Västervallvägen 14

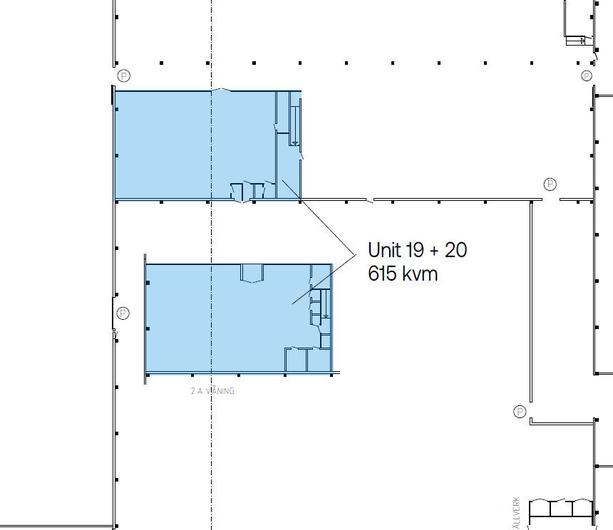
Industri/Kontor/Lager, 615 m2, Halmstad

Hyra: Kontakta annonsören

Lager med egen markport och kontor på bästa logistikläge i Halmstad

Nu finns möjlighet att hyra enfräsch och välplanerad lagerlokalmed kontor i ett strategiskt logistikläge i Halmstad.

Lokalens fördelar:


  • Totalyta:615 kvm, varav415 kvm lageroch200 kvm kontor.

  • Smidig logistik:Egen markport och stora rangerytor för effektiv hantering av varor.

  • Modern standard:Renoverad 2020 med ljusa och funktionella ytor.

  • Komplett kontorsdel:Mötesrum, pentry och WC.

  • Goda parkeringsmöjligheter:Fri parkering i närområdet samt möjlighet att hyra platser på fastigheten.

Området
Industriområdet Larsfrid ligger endast 3 kilometer söder om centrala Halmstad och utgör ett optimalt logistikläge i direkt anslutning till E6/E20, nära Halmstad hamn samt vid knutpunkten för riksväg 15, 25 och 26. Högskoleområdet erbjuder ett brett serviceutbud av butiker och restauranger. Det finns goda kollektivtrafikförbindelser med buss till centrala Halmstad.

En flexibel lokal medutmärkt tillgänglighetför lager, logistik eller produktion.Kontakta oss för mer information eller en visning!

Omgivning

Företag i närheten:

Lidl, Snabbgross, Derome, Biltema Logistics AB och Access Logistics

Parkeringsmöjligheter/garage:

Fri parkering

Skyltläge:

Bra exponering av skyltläge

Vägbeskrivning:

Direkt anslutning till E6/E20 och riksväg 15/25/26

Planlösning

Fastighetsbeteckning:

Fogden 6

Byggår:

1979

Renoveringsår:

2020

Planlösning:

Se bilder.

Kommunikationer

Goda kollektivtrafikförbindelser med buss till centrala Halmstad

Service

Närservice:

Högskoleområdet erbjuder ett brett serviceutbud av butiker och restauranger

Övrigt

Lokalen kan nås via:

Egen markport

Kontraktlängd:

Förhandlingsbart

Kontrakttyp:

Förstahandskontrakt

Tillträde:

Omgående.

Kontakta Annonsör

Alexander Otelea

Alexander Otelea