Dokument

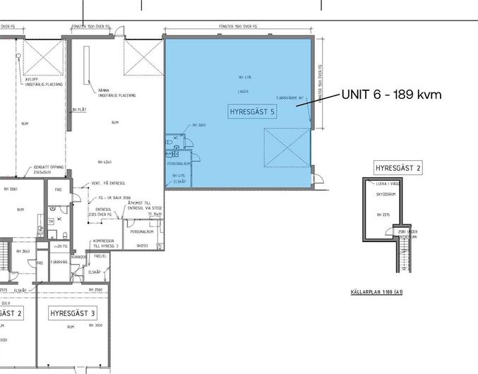
Flaggan 1_Ritning_Unit 6 - 189 kvm.pdf

Laholmsvägen 84

Industri/Kontor/Lager, 189 m2, Halmstad

Hyra: Kontakta annonsören

Lättillgänglig lagerlokal med markport finns att hyra på Laholmsvägen

Industri- och butiksfastighet med ledig lagerlokal om 189 kvm. Lokalen är belägen på markplan och har flera fönster som ger ett naturligt ljusinsläpp. Det finns en egen markport för smidig in och urlastning samt goda möjligheter för effektiv lagerhållning med en takhöjd på 4 meter. Faciliteter erbjuds i form av WC och pentry. Byggnaden består av ett plan med ett flertal butiker och industrilokaler. Det finns fri parkering i anslutning till lokalen.

Industriområdet Larsfrid ligger endast 3 km söder om centrala Halmstad och utgör ett optimalt logistikläge i direkt anslutning till E6/E20, nära Halmstad hamn samt vid knutpunkten för riksväg 15, 25 och 26. Högskoleområdet erbjuder ett brett serviceutbud av butiker och restauranger. Det finns goda kollektivtrafikförbindelser med buss till centrala Halmstad.

Omgivning

Företag i närheten:

Lidl, Snabbgross, Derome, Biltema Logistics AB och Access Logistics

Parkeringsmöjligheter/garage:

Fri parkering

Skyltläge:

Bra exponering av skyltläge i ett levande och expansivt område

Planlösning

Fastighetsbeteckning:

Flaggan 1

Byggår:

1959

Våningsplan:

1 av 1

Planlösning:

Finns bland bilder/som PDF.

Kommunikationer

Goda kollektivtrafikförbindelser med buss till centrala Halmstad

Service

Närservice:

Högskoleområdet erbjuder ett brett serviceutbud av butiker och restauranger

Övrigt

Takhöjd:

4 m

Lokalen kan nås via:

Egen entré/markport

Kontraktlängd:

Förhandlingsbart

Kontrakttyp:

Förstahandskontrakt

Tillträde:

Enligt överenskommelse

Kontakta Annonsör

Alexander Otelea

Alexander Otelea