Vaksala-Eke, Hus D2, Uppsala

Butik/Industri/Kontor, 287 m2, Uppsala

Hyra: Kontakta annonsören

Moderna Industriytor i HUS D2, Vaksala Eke
I byggnad D2 finns just nu en ledig lokal ca 287 kvm. Lokalerna är lämpliga för både lager, verkstad och produktion, samt kontor och personalutrymmen.
I lokalerna finns golvbrunn ansluten till en gemensam oljeavskiljare. Fiberanslutning för internet är installerad, och området har även laddstationer för elbilar.

Lokalerna är flexibla och hyresvärden lyhörd för kommande hyresgästanpassningar.

Omgivning

Omgivning/natur:

Fastigheten Vaksala-Eke 3:2 är ett nytt modernt industriområde beläget i nordvästra Uppsala nära avfarten till E4:an. Det har tidigare varit ett tegelbruk på platsen och originalbyggnaden från 1967 står kvar. I Vaksala Eke sitter du soim hyresgäst i ett semicentralt läge med endast ett par minuters bilfärd till handelsplatsen Gränbystaden

Företag i närheten:

Med endast 3 minuters bilfärd når du som hyresgäst populära Gränbystaden som erbjduer det mesta inom detaljhandel, livsmedel och närservice.

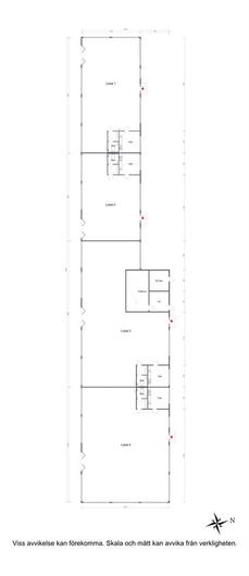
Planlösning

Byggår:

2022

Planlösning:

Nyproducerade Industri/lagerytor om 287 kvm. Lokalerna är utrustade med industriport, separat entré, eget kök och RWC. Lokalerna har god flexibilitet där ombonade kontorsytor är möjligt att tillskapa.
Takhöjd: 3,4 m.

Kommunikationer

Bussförindelser finns längs med väg 288 som går pararellt med området. Du som hyresgäst har även snabb access till E4:ans på och avfarter samt välplanerade cykelvägar som med spikrak kurs leder dig hela vägen till Centralstationen och Uppsala City.

Kontakta Annonsör

Zouhair Ayed

Zouhair Ayed