Johannesbäcksgatan 31 B

Butik/Kontor, 229 m2, Uppsala, Sala Backe

Hyra: Kontakta annonsören

Toppmodern lokal i två plan
Nu finns möjligheten att hyra denna toppmoderna lokal om 229 kvm i två plan. Lokalen passar perfekt för både kontor eller butik tack vare de stora skyltfönsterna.
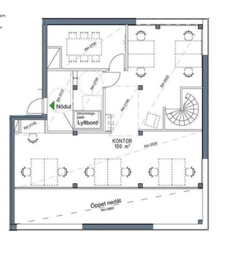
På entréplan finns mötesrum, kök, kontor, samtalsrum, RWC samt yta för lounge grupp. På det övre planet finns ett mötesrum samt stora öppna ytor som skapar ett öppet kontorslandskap.
På det övre planet är det även öppet så att ni ser ned i entrén när kunderna kommer.

Med en stor och öppen planlösning direkt i entrén får ni möjlighet att skapa en inspirerande arbetsmiljö eller en inbjudande butiksmiljö.
Denna lokal erbjuder stora fönster som släpper in naturligt ljus vilket skapar en ljus och trivsam atmosfär. Dessutom finns det utmärkta skyltmöjligheter, vilket gör det lätt för kunder att hitta er.

Lokalen är även strategiskt belägen med närhet till kollektivtrafik och parkering, vilket gör den lättillgänglig för både anställda och kunder. Om du letar efter en lokal som är redo att användas utan omfattande renoveringar, är detta det perfekta alternativet.

Kontakta oss gärna för mer information eller för att boka en visning. Missa inte chansen att hyra denna unika lokal och ge ditt företag en fantastisk plattform för tillväxt!

Planlösning

Byggår:

2022

Övrigt

Tillträde:

Enligt överenskommelse

Kontakta Annonsör

Jesper Lind

Jesper Lind