Bruno Liljeforsgatan 62

Butik/Kontor, 122 m2, Uppsala, Sala Backe

Hyra: Kontakta annonsören

Lokal med bra skyltläge i Gränby!
Ny finns en lokal med ett bra synligt läge i markplan ledig i Gränby. Lokalen i två plan har en öppen yta med stora fönster och entré ut mot gatan i markplanet samt en trappa ner till en öppen yta i källarplanet med utgång till källaren. Området är ett bostadsområde med flerfamiljshus och stora idrottsanläggningarna som IFU Arena, Gränby Ishallar, friidrottsarena samt tennis- och padel-klubben UTK. Området har även Ica, frisörer, sushi och Willys vid Gränbystaden som ligger på gångavstånd med ett generöst utbud av service. I området är det mycket folk i rörelse både dag och kväll.

För mer information och visning kontakta ansvarig mäklare Claes Du Rietz.

Omgivning

Omgivning/natur:

Området Gränby är ett bostadsområdet med flerfamiljshus och även idrottsanläggningar som IFU Arena , Gränby Ishallar, fridrottsarea, Tennishallen med tennis, padel och badminton samt en BMX park. Härifrån är det också nära 4H gården i Gränby.

Företag i närheten:

Ica finns i området samt några minuter till hela Gränbystades utbud.

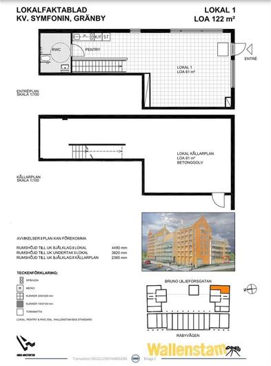
Planlösning

Planlösning:

Lokalen om totalt 122 kvm är fördelad i två plan med 61 kvm i vardera plan. Markplan har en öppen med stora fönster och entré ut mot gatan. Längst in i lokalen finns pentry och en RWC samt en trappa ner till källarplanet.
Källarplanet om 61 kvm har en öppen yta med egen utgång i källaren.

Kommunikationer

Härifrån är det bra kommunikationer med buss som ahr flera avgångar i timmen. Det är någon minut till E4:ans påfart samt mycker bra gång och cykelvägar in till centrum men också till hela gränbystaden.

Kontakta Annonsör

Edvin Nicholls

Edvin Nicholls