Mjölnare Grips väg 10

Butik/Industri/Kontor, 2700 m2, Stockholm

Hyra: Kontakta annonsören

Nyproducerad verksamhetsfastighet med skyltläge mot väg 73 - ca 2 700 kvm LOA (anpassningsbar)

Beskrivning

Möjlighet att påverka utformning från start- skräddarsy er nästa etablering i ett av södra Stockholms bästa exponeringslägen - Vega handelsområde.

På den sista tomten i Vega, Mjölnare Grips väg 10planeras en modern och flexibel verksamhetsfastighet med direkt synlighet motväg 73 (Nynäsvägen)och direkt access till på- och avfart.

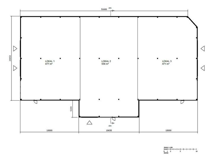
Här  kan ni hyra allt från 800 kvm i 2 plan till hela fastigheten om minst 2700 kvm - upp till 3600 kvm.

Fastigheten uppförs med modern arkitektur, stora glaspartier och representativa entréer - idealiskt för företag som vill etablera lager, industri, showroom, gym och kontor.

 

Planerad byggnation (LOA)

En möjlig utformning av projektet omfattar:


  • Tomtarea:ca 5 200 kvm


  • BYA:ca 1 800 kvm


  • LOA:ca2 700 kvm(inkl. ca 50% plan 2)


Detta utgör en effektiv och kommersiellt optimal lösning med god balans mellan lager/produktion i markplan och kontor/showroom på övre plan.

 

Flexibilitet - byggs efter hyresgästens behov

Då byggnationen ännu inte påbörjats finns stora möjligheter att anpassa fastigheten:


  • Upp till ca3 600 kvm i två plan


  • Alternativt ca1 800 kvm höglagermed upp till ca9 m takhöjd


  • Möjlighet till uppdelning för flera hyresgäster


  • Minsta yta från ca800 kvm (i två plan)


  • Övre plan kan anpassas med bärighet förgymlager, showroom eller kontor


Detta gör projektet attraktivt för både enskilda större aktörer och flera hyresgäster.

 

Logistik & funktion


  • Effektiv angöring och varuflöden


  • Möjlighet till portar och lastning efter behov


  • Ca20 parkeringsplatserinom fastigheten


  • Möjlighet till laddplatser


  • Flexibel användning av markytor


Notera att baksidan av fastigheten (mot bostäder) lämpar sig mindre för uppställning, men kan med fördel nyttjas förparkering, exempelvis för hyresgäster i plan 2.

 

Toppläge med maximal exponering


  • Direkt synlighet frånväg 73 (Nynäsvägen)


  • Direkt access till På-/avfart 


  • Etablerat handelsområde med starka grannar:Mio, Dahls, Flugger Färg, Core Gym, Carglass, Shurgard Hemköp m.fl.


  • Snabb access till Stockholm, Nynäshamn och regionen


Ett optimalt läge för verksamheter som vill kombineralogistik, tillgänglighet och exponering.

 

Användningsområden


  • Lager & logistik


  • Lätt industri / produktion


  • Showroom / butik (sällanköp)


  • Kontor i kombination med verksamhet


  • Gym

 

Tidplan

Planerad färdigställande:Q2 2027

 

 

LOCUS ADVICE

Locus Advice är ett fastighetskonsultbolag med fokus på kommersiella fastigheter och lokaler.
Vi arbetar med


  • Lokaluthyrning

  • Lokalöverlåtelser 

  • Fastighetsöverlåtelse

  • Transaktionsrådgivning

  • Värdering

  • Projektledning

  • Vi representerar även hyresgäster som vill ha hjälp med sitt lokalsökande.


Genom etablerade samarbeten med både stora och små fastighetsägare har vi tillgång till ett stort utbud av lokaler utöver vad vi kan marknadsföra i vår egen regi. Via dessa samarbeten kan vi med stor sannolikhet hjälpa er hitta den lokal ni söker efter.

Kontakta Annonsör

Christer Sagheim

Christer Sagheim