Järnvägsgatan 17A

Butik, 30 - 165 m2, Landskrona

Hyra: Kontakta annonsören

Cityläge i Landskrona!
Fin butiks- eller kontorslokal på optimalt cityläge, mitt i centrala Landskrona!

Lokalen har utmärkta exponeringsmöjligheter med dubbla skyltfönster utmed Järnvägsgatan.
Utöver detta en mycket fräsch och modern standard och funktionell planlösning, med möjlighet till både butik och kontor eller utställning i frontytan och arbetsyta inne i lokalen.
Längre in i lokalen finns dessutom ett praktiskt lagerutrymme för förvaring.

Lokalen hyrs ut från och med januari månad 2025, eller enligt överenskommelse.

Välkommen att kontakta oss för ytterligare information och visning!

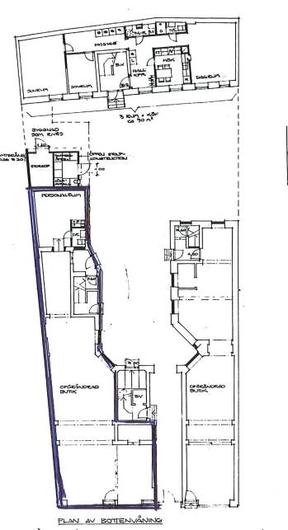
Planlösning

Våningsplan:

1 av 4

Kontakta Annonsör

Anders Hedenskog

Anders Hedenskog