Genvägen 52-56

Bostad, 592 m2, Knivsta

Exploateringsfastighet i Knivsta
Nu finns möjlighet att förvärva en exploateringsfastighet där detaljplan medger bostäder och skola. Fastigheten har ett bra läge i Knivsta som är ett samhälle med mycket bra kommunikationer och service. Knivsta ligger mellan Uppsala och Stockholm och nära Arlanda flygplats. Ett mycket lättillgängligt läge med goda kommunikationsmöjligheter då E4:an ligger några minuter bort samt att tågstationen i Knivsta har täta avgångar både söder och norröver. Du har även all service du behöver inom räckhåll.
Ytorna är tillgängliga för den nya ägaren.
För mer information, kontakta ansvarig mäklare Claes Du Rietz, 018-60 60 02

Omgivning

Omgivning/natur:

Knivsta är ett samhälle i Uppland och centralort i Knivsta kommun i Uppsala län. Orten ligger vid järnvägen Ostkustbanan 48 km norr om Stockholm och 19 km söder om Uppsala, ett par kilometer väster om motorvägen E4 vid sjön Valloxen. Knivsta har mycket god service med flera stora matbutiker som Willys, Kvantum men också Systembolag, Apotek, caféer och lunchrestauranger mm. Här har du full service med allt som behövs. Det finns också mycket företag som har sina säten här, dels runt Genvägen där denna fastighet ligger men också i centrala Knivsta samt företags- och industriområdet Ar några kilometer utanför Knivsta.

Kommunikationer

Härifrån finns det goda kommunikationer med Knivsta station i centrala Knivsta som har täta tåg- och busskommunikationer.
Härifrån är det också mycket nära E4:an som snabbt tar dig till Arlanda, Märsta Stockholm och Uppsala.

Övrigt

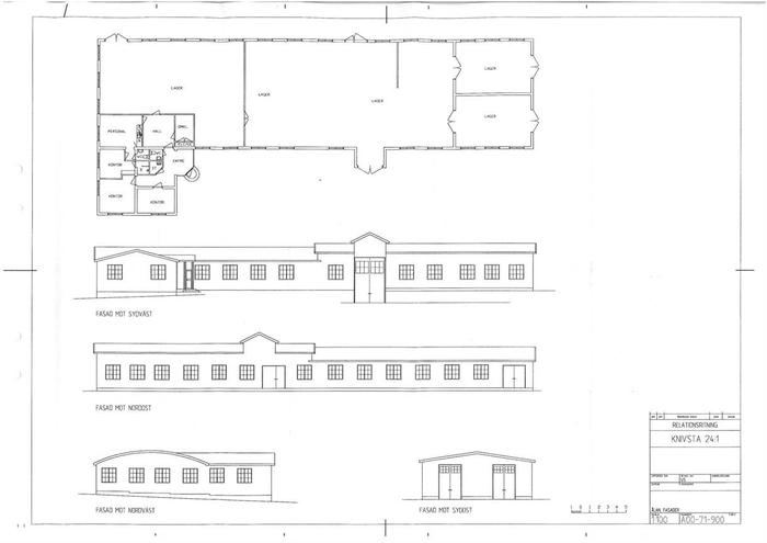
Byggnad:Industribyggnad

Byggnadstyp: Industri

Byggår: 1945

Beskrivning: Grund: betongplatta, Stomme: tegel, betong, lättbetong, stål och träbalkar. Fasad: puts, Tak: plåt, Fönster: 2-glas. Hängrännor: plåt

1-plansbyggnad med en kontorsdel med tre kontorsrum, personalrum med pentry, omklädningsrum och toaletter. Resterande delar av byggnaden inrymmer två större lager/verkstadshallar samt på den högra kortändan två mindre lagerytor (f.d. större garage) med stora portar. Den vänstra stora lagerhallen har en port från gården, den stora lagerhallen i mitten har port från både framsida och gård.

Uppvärmning, kylning och ventilation
Uppvärmning: el.
Ventilation: självdrag

Vatten och avloppstyp
Kommunalt vatten och avlopp

Radon
2009 gjordes en radonmätning i huset och gränsvärdena låg mellan 80-130 Bq/m3(+ - 20), alltså under gränsvärdet på 200.

Taxeringsvärde:

1 503 000

Driftskostnad:

66 400 /år

Pris:

8 900 000

Kontakta Annonsör

Claes Rietz

Claes Rietz