Klackskärsgatan 3

Bostad/Övrigt, 1947 m2, Östhammar

BOSTADSHYRESHUS I ÖSTHAMMAR
Bostads- och hyreshus i Östhammar bestående av 21 lägenheter och två lokaler i markplan och plan 1. Ett bra förvaltningsobjekt!

Denna fastighet är centralt belägen i Östhammar, med allt du kan önska dig inom bekvämt räckhåll. Inom några minuters promenad når du sjötorget med restauranger, den pittoreska gågatan med vackra byggnader och Östhammars busstation, perfekt för pendlare som behöver resa till närliggande orter.
För naturälskaren finns också vackra promenadstråk längs sjön i närheten, vilket ger dig möjligheten att ta in den fridfulla atmosfären i staden.

Östhammar är redan ett hem för flera tunga aktörer inom energi, industri, teknik och tjänster - med etableringar som Forsmark, industrikluster inom tillverkning och en snabbt växande besöksnäring. Här finns också ett aktivt näringslivsnätverk och ett företagsklimat som rankas bland de bättre i regionen.
Östhammar erbjuder också en levande stadskärna och genuin småstadskänsla där servicen är personlig, utbudet brett och atmosfären varm. Här finns allt du behöver - och lite till - oavsett om du vill handla, äta gott eller bara njuta av livet vid havet.

För mer information kontakta ansvarig mäklare, Claes Du Rietz på 018-60 60 02.

Omgivning

Omgivning/natur:

Östhammar är en växande kommun vid Upplands kust där företagande, innovation och livskvalitet går hand i hand. Här finns en unik kombination av strategiskt läge, stark företagskultur och en levande gemenskap som gör det enkelt att starta, driva och utveckla företag. Med nära koppling till Uppsala, Arlanda och Stockholm når du stora marknader på bara någon timme - men slipper storstadens trängsel och kostnader. Samtidigt ger den natursköna miljön, den trygga livsstilen och närheten till hav, skärgård och skog ett vardagsliv som lockar både arbetskraft och entreprenörer.

Kommunikationer

Upplands lokaltrafik linje 811 kör mellan Östhammar-Gimo-Alunda-Uppsala och man kan även åka buss från Östhammar och Hargshamn till Stockholm med SL.

Övrigt

Byggnad:Huvudbyggnad

Byggnadstyp: Hyreshusbyggnad

Byggår: 1993

Beskrivning: Grund: betong, Stomme: betong, Fasad: tegel, Takbeklädnad: falsad plåt.

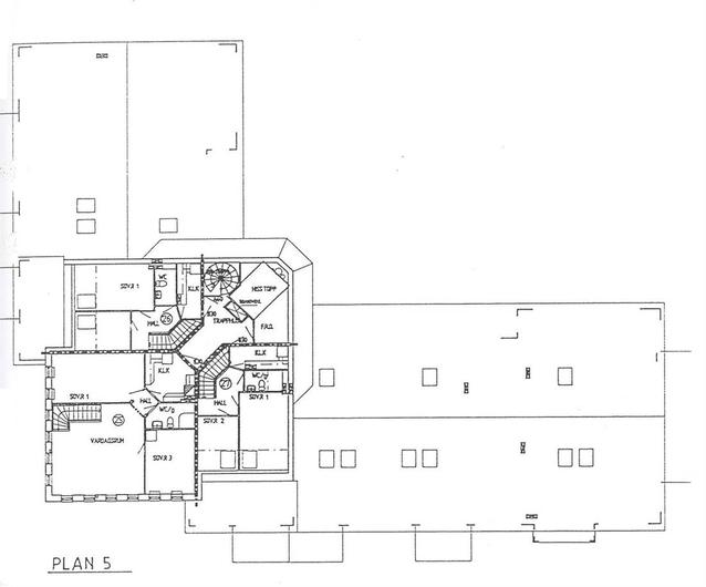
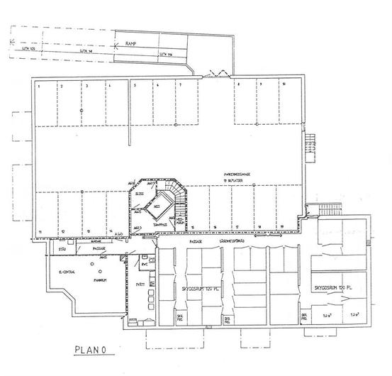
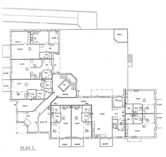
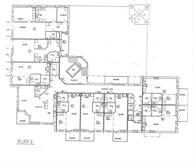
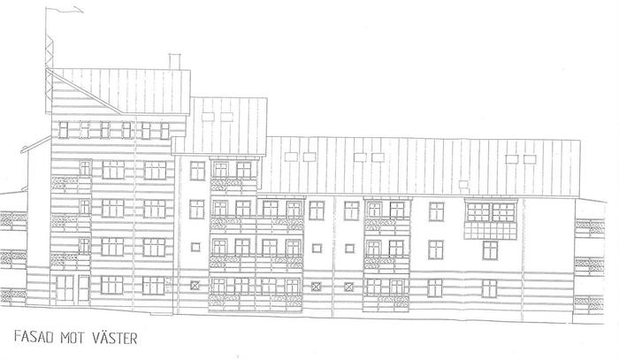
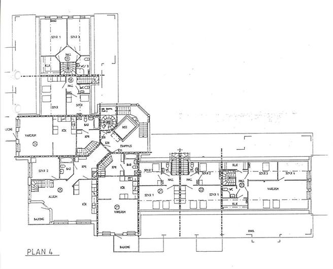
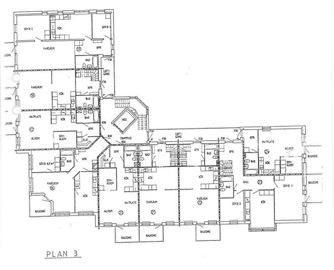
Byggnaden är uppförd med två flyglar som möts i mittendelen där trapphuset finns med hiss och trappor. Entrén är ljus och välkomnande med stenbeläggning och kakel. Byggnaden har totalt 5 våningar med 15 lägenheter, två lokaler samt en tredje lokal som byggts om till 6 st 1 rum och kök. Lägenheterna nås via loftgångar och de två översta planen har etagelägenheter med högt i tak. Byggnaden har ett helt källarvåning som inrymmer tvättstuga med 2 tvättmaskiner 1 tumlare 1 torkskåp och 1 mangel, 27 källarförråd, skyddsrum och varmgarage med ramp.

Uppvärmning, kylning och ventilation
Uppvärmning: Fjärrvärme
Ventilation: Självdrag

Vatten och avloppstyp
Kommunalt vatten och avlopp.

TV/internet
TV: Östhammars stadsnät är installerat i fastigheten, basutbudet ingår i hyran.
Internet: Bredband tecknas separat av varje enskild hyresgäst.

Taxeringsvärde:

20 840 000

Tillträde:

Enligt överenskommelse

Driftskostnad:

748 659 /år

Pris:

25 000 000

Hyresintäkter:

2 163 957 /år

Kontakta Annonsör

Claes Rietz

Claes Rietz