Valthornsvägen 1 B

Restaurang & café, 94 m2, Uppsala, Gottsunda

Hyra: Kontakta annonsören

Restauranglokal vid Gottsunda centrum
Nu finns en restauranglokal ledig vid Gottsunda centrum. Lokalen har en gästentré ut mot Valhornsvägen 1 och Gottsunda centrum. Det är en öppen yta när man kommer in i lokalen där även den förberedda delen för matlagning är med fettavskiljare och fläkt. Lokalen har ett beredningsrum och diskrum samt personalytor. Den passar perfekt för restaurang, servering, café eller dylikt.
Läget är perfekt intill Gottsunda centrum, ett mycket levande centrum med mycket folk i rörelse och ett generöst utbud av service i alla dess former.
Välkommen att kontakta ansvarig mäklare Pernilla Persson, 018-60 60 05!

Omgivning

Omgivning/natur:

Gottsunda är en stadsdel i södra Uppsala, till större delen ett bostads- och butiksområde. Gottsunda är en snabbt växande stadsdel med nybyggd skola, stora grönområden samt stora möjligheter för företagare. Gottsunda erbjuder ett stort utbud av livsmedelsbutiker, apotek, butiker och allt annat man kan tänkas behöva. Lokalen ligger alldeles intill Gottsunda Centrum som erbjuder all tänkbar service såsom livsmedelsbutiker samt flertalet restauranger. Det finns även gott om parkeringsmöjligheter intill lokalen och Gottsunda Centrum. Det finns även ett brett kulturliv i Gottsunda där det erbjuds teater, konst och bibliotek. Gottsunda är stadsdelen där allt man behöver finns.

Företag i närheten:

Det finns tillgång till god service med flera livsmedels butiker, brett utbud av restauranger, vårdcentral, apotek samt all tänkbar service man kan behövas.

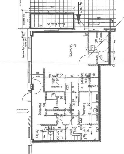
Planlösning

Planlösning:

Lokalen om 91 kvm har entré från framsidan ut mot gatan samt en personalingång från sidan. När du kommer in från entrén mot gatan kommer du in till en öppen yta där även köksdelen är. Här finns även gästtoalett. Vidare in i lokalen finns beredningsrum, diskrum och personalytor.

Kommunikationer

Det erbjuds goda kommunikationer med flera olika busslinjer från Gottsunda Centrum, fina gång och cykelvägar in till centrum samt bra möjligheter för bil genom Dag Hammarskjölds väg. Du tar dig även enkelt till industriområdet Boländerna.

Kontakta Annonsör

Pernilla Persson

Pernilla Persson