Honungsgatan 19

Restaurang & café, 95 m2, Uppsala, Rosendal

Hyra: Kontakta annonsören

Cafélokal med toppenläge i hjärtat av Rosendal intill nya torget.
Nu söker vi en driven Caféägare för denna ljusa fina lokal som har ett perfekt läge vid det nya torget Rosendals torg. Caféet med toppenläge har en öppen yta med för servering och generös takhöjd samt stora fönster ut mot torget, Det kommer finnas möjlighet till uteservering längs husfasaden som vetter ut mot torget. Läget är perfekt i hjärtat av det blomstrande Rosendal som är ett området som expanderat kraftigt det senaste åren med bostäder, butiker, restauranger, apotek och alla möjligheter till träning, rekreation med stadsskogen intill. Området är har redan den väletablerade träningsanläggningen USIF som erbjuder tennis, padel, gruppträning och gym . Nu byggs även Multihus som är en satsning vid Rosendals torg med inriktning på en ny idrottshall, kulturskola och bibliotek med trygghetsfokus. Multihuset beräknas stå klart hösten 2024.

För mer information och visning, kontakta ansvarig mäklare Claes Du Rietz!

Varmt välkommen!

Omgivning

Omgivning/natur:

Rosendal ligger mitt i ett av Sveriges främsta kunskapskluster med två universitet och ett av landets största sjukhus som grannar. Härifrån tar det bara några minuter att cykla till Uppsalas centrum. Området expanderar och är en mix av bostäder, handel, service och här finns USIF Arena med gym, tennis- och paddelbanor mm. I området finns både Ica och Hemköp. Direkt närhet till värdefulla park- och naturområden med höga rekreationsvärden.

Företag i närheten:

I området som bara växer erbjuder flertalet restauranger, pizzerior, Café Lejon, sushibutik, grönsakshandel, inredningsbutik mfl . Livsmedelsaffär i Ica Nära och den nyligen öppnade Hemköp. Vårdcentral, läkarmottagning, tandläkare och apotek finns i området och i närtid kommer även ett systembolag att öppnas.

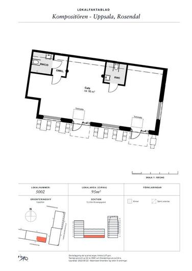
Planlösning

Planlösning:

Lokalen om 95 kvm har 3 meter i takhöjd. Det är idag en råyta men lokalen kommer färdigställas med två RWC och kök/beredningsrum för caféverksamhet. Det är stora fönster i lokalen som vetter ut mot gatan och det nya torget Rosendals torg. Uteservering längs fasaden mot torget är även möjlig.

Kommunikationer

Goda kommunikationer med stadsbussar som trafikerar genom området flera gånger i timmen. Bra gång- och cykelvägar in till centrum.

Kontakta Annonsör

Edvin Nicholls

Edvin Nicholls