Carlsgatan 43

Butik/Restaurang & café, 62 m2, Malmö, Centrum

Hyra: Kontakta annonsören

Drömmer du om att öppna ett café i hjärtat av Malmö? På Carlsgatan, med perfekt placering nära Malmö Centralstation, finns nu en nyproducerad cafélokal redo att ta emot din verksamhet. Med sin moderna design och flexibla ytor ger denna lokal dig möjlighet att skapa en inbjudande mötesplats där kunder kan njuta av allt från morgonkaffe till eftermiddagsfika. De stora fönstren skapar en ljus och öppen miljö, medan den strategiska placeringen säkerställer en konstant ström av besökare.

Carlsgatan är ett område med stark puls, där kontor, bostäder och besökare smälter samman. Närheten till Malmö Centralstation gör det enkelt för både lokala gäster och pendlare att ta sig hit. Dessutom förstärker områdets växande dynamik och närheten till andra verksamheter känslan av en levande stadsdel, vilket gör det till den perfekta platsen för ditt café.

Omgivning

Omgivning/natur:

Carlsgatan är en av Malmös mest eftertraktade adresser för företag. Den direkta närheten till Malmö Centralstation ger dig och dina medarbetare enkel tillgång till både nationella och internationella transportmöjligheter. Omgivningen erbjuder dessutom ett brett utbud av restauranger, caféer.

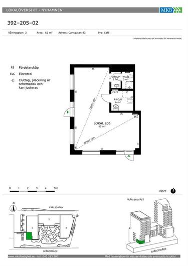
Planlösning

Fastighetsbeteckning:

Godsfinkan 3

Kommunikationer

Lokalen på Carlsgatan erbjuder ett kommunikationsmässigt drömläge tack vare sin direkta närhet till Malmö Centralstation. Härifrån har du enkel tillgång till regional- och fjärrtåg som kopplar samman Malmö med hela Öresundsregionen och resten av Sverige. Lokala och regionala busslinjer finns också i närheten, vilket gör det smidigt att nå alla delar av Malmö och omgivande områden. För den som cyklar finns utmärkta cykelvägar och säkra cykelställ i anslutning till lokalen, och för resor längre bort är både Kastrup och Malmö Airport snabbt och enkelt tillgängliga via tåg eller bil. Läget gör det bekvämt för både medarbetare och kunder, oavsett varifrån de reser.

Övrigt

Tillträde:

2026-09-01.

Kontakta Annonsör

Lokalgruppen

Lokalgruppen