Gymnasiegatan 7

Restaurang & café, 202 m2, Kungsbacka

Hyra: Ej angiven

Välkommen till Lindens park. Här har det utvecklats tre nya bostadskvarter med lokaler i bottenplan där vi nu har en restauranglokal kvar att fylla. Lokalens entré vetter mot ett litet torg där det är tänkt att ha uteservering om sommaren. Här har du som hyresgäst möjligheten att påverka lokalens utformning. Berätta om ditt koncept så bokar vi en visning!

I Lindens park har det utvecklats tre nya bostadskvarter med lokaler i bottenplan där vi nu har nöjet att förmedla en restauranglokal. I de nya kvarteren har det flyttat in ungefär 500 personer och i grannkvarteret bor lika många.

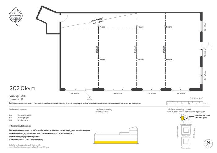
Lokalens entré vetter mot ett litet torg där det är tänkt att ha uteservering om sommaren. Här har du som hyresgäst möjligheten att påverka lokalens utformning. Lokalen är rymlig med omkring 4 meter i takhöjd samt stora entré- och fönsterpartier vilket ger en härlig exponering ut mot gatorna.

I kvarteret kommer även det finnas gym, fotvård, servicebutik, mäklarkontor, co-working, frisör och ytterligare restaurang/café.

Välkommen att presentera ditt koncept så bokar vi en visning!

Omgivning

Kvarteren i Lindens park gränsar till Systembolaget och parkeringshuset Linden. Intill kvarteren hittas även Aranäsgymnasiet och Kungsbacka Teater som invigdes 2006 och som var första delen av stadsutvecklingsprojektet för utvidgande av Kungsbacka centrum. Kungsbacka befinner sig i en expansiv fas i form av förtätning av orten av såväl bostäder som kommersiella ytor.

Kommunikationer

Kommunikation med bil sker antingen söder om via Inlagsleden eller igenom Kungsbacka centrum. För den som åker kollektivt är det cirka 10 minuters promenad från Kungsbacka station och buss 3 avgår även från stationen som tar dig till närmaste hållplatsen, Teatergatan, som trafikeras varje halvtimme.

Övrigt

Parkering

Nej

Skyltläge

Ja

Övrigt

Tillträde sker efter lokalen har anpassats vilket uppskattningsvis tar drygt 6 månader.

Kontakta Annonsör

Rikard Reutherborg

Rikard Reutherborg