Brogatan 17

Butik/Restaurang & café, 156 m2, Göteborg, Centrum

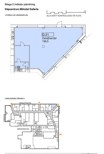
Nu finns det en vakant lokal i Mölndals galleria där det tidigare varit en caféverksamhet. Lokalen ligger i hörnet vid korsningen Broslätten/Broplatsen, precis vid entrén från Mölndal centrum.
Här ser vi gärna ett café eller en restaurang. Lokalen är idag mer eller mindre i betong så det finns stora möjligheter att sätta sin egen prägel och skapa sin dröm.
Det kommer att finnas möjlighet till uteservering mot Brogatan.

I Mölndals galleria finns det ett starkt kundflöde. Här finns ett stort urval noggrant utvalda butiker och restauranger så det är en väldigt bra mix. Mölndals galleria lockar cirka 5 miljoner besökare årligen.

Med flera hållplatser i närheten och framförallt Mölndals innerstad som granne så finns det gott om kommunikationer till gallerian. Tar man sig hit med bil har vi också gott om parkeringsplatser.

I gallerian finns allt man kan tänka sig. Oavsett om man ska shoppa, träna, äta mat eller vardagshandla. Om man saknar något i gallerian är Mölndal centrum precis utanför med ytterligare butiker och restauranger. Nordic Wellness har ett stort gym i gallerian.

Det erbjuds ett investeringsbidrag för att bygga upp lokalen till att passa nästa aktörs verksamhet. Det är entré till lokalen från både gallerian och brogatan.

Omgivning

I Mölndals galleria finns det ett starkt kundflöde. Här finns ett stort urval noggrant utvalda butiker och restauranger så det är en väldigt bra mix. Mölndals galleria lockar cirka 5 miljoner besökare årligen.

Kommunikationer

Med flera hållplatser i närheten och framförallt Mölndals innerstad som granne så finns det gott om kommunikationer till gallerian. Tar man sig hit med bil har vi också gott om parkeringsplatser.

Service

I gallerian finns allt man kan tänka sig. Oavsett om man ska shoppa, träna, äta mat eller vardagshandla. Om man saknar något i gallerian är Mölndal centrum precis utanför med ytterligare butiker och restauranger. Nordic Wellness har ett stort gym i gallerian.

Övrigt

Parkering

Ja

Skyltläge

Ja

Övrigt

Det erbjuds ett investeringsbidrag för att bygga upp lokalen till att passa nästa aktörs verksamhet. Det är entré till lokalen från både gallerian och brogatan.

Kontakta Annonsör

Rikard Reutherborg

Rikard Reutherborg