Storgatan 36

Kontor/Lager, 155 m2, Vingåker

Hyra: Kontakta annonsören

Attraktivt belägen lokal med två större rum, pentry samt en fräsch relaxavdelning med bastu!
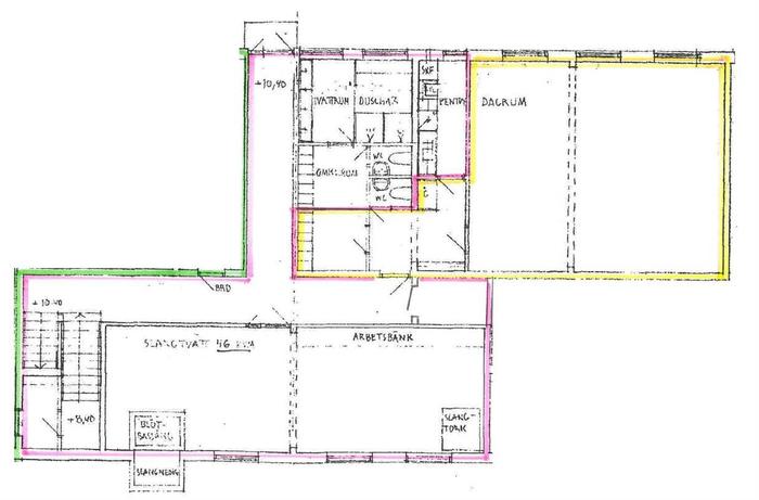
Lokalytan fördelas på en relaxavdelning med omklädningsrum, bastu, 2 duschar och wc om ca 29 m². Här nere finns också ett större rum om ca 46 m² med 3 fönster och en takhöjd om ca 2,43 m som tidigare nyttjats som gym. Detta rum kan användas som kontor eller lager. Lokalen har även ett större rum om ca 80 kvm som kan nyttjas som kontor alternativt samlingsrum samt ett pentry. Det är möjligt att ta upp en entré på husets baksida så att man får en egen ingång till lokalen i markplan så att det går att komma in med rullstol. Det går också att gå in via huvudentrén till Storgatan 36 och gå ner en trappa via trapphuset.

Fastighetsägaren önskar hyra ut alla ytor som en helhet till samma hyresgäst.

Omgivning

Parkeringsmöjligheter/garage:

Tre platser utanför går att hyra för 150 kr/månaden + moms. Parkeringsmöjligheter även i lokalen samt på intilliggande gator.

Kommunikationer

Inom några minuters promenad ligger Vingåkers Station där fjärrtåg och ett stort antal busslinjer passerar.

Service

Närservice:

Alldeles utanför lokalen finner du Dallasgrillen samt bensinstation med biltvätt. Det är även nära till Vingåkersbadet, Systembolaget och Coop. Inte långt ifrån lokalen ligger den rikskända Vingåkers Factory Outlet; vilken är Sörmlands största besöksmål med drygt 450 000 besökare varje är. Här kan stor som liten hitta kläder till fyndpris!

Övrigt

Övrigt:

Fastighetsägaren har fri prövningsrätt vad gäller val av hyresgäst. Vänligen respektera att all kontakt och visningar skall ske via mäklaren enligt hyresvärdens önskemål.

Kontakta lokalförmedlaren Hanna Friman för mer info; maila gärna till [email protected] eller messa/ring på mob: 0733-24 35 23.

Tillträde:

omgående eller enligt ök.

Kontakta Annonsör

Hanna Friman

Hanna Friman