Vaksala-Eke, HUS G

Industri/Kontor/Lager, 704 m2, Uppsala

Hyra: Kontakta annonsören

Moderna industriytor med tillhörande kontor i Vaksala Eke
Lokal om 704 kvm I Vaksala Eke med stor andel öppen yta, idealisk för lager, verkstad eller produktion. På plan 1 finns ett rymligt lager med 7,5 meters takhöjd, en 4 meters port samt oljeavskiljare. På övre plan finns kontorsrum och
personalutrymmen, inklusive kök och lunchrum. Fastigheten erbjuder gott om parkeringsmöjligheter samt ytor för uppställning. Strategiskt läge med snabb access till motorvägen, endast ett par minuter från Gränbystaden

Omgivning

Omgivning/natur:

Fastigheten Vaksala-Eke 3:2 är ett nytt modernt industriområde beläget i nordvästra Uppsala nära avfarten till E4:an. Det har tidigare varit ett tegelbruk på platsen och original-byggnaden från 1967 står kvar. I Vaksala Eke sitter du som hyresgäst i ett semicentralt läge med endast ett par minuters bilfärd till handelsplatsen Gränbystaden

Företag i närheten:

Med endast 3 minuters bilfärd når du som hyresgäst populära Gränbystaden som erbjuder det mesta inom detaljhandel, livsmedel och närservice.

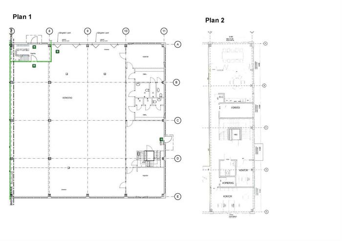
Planlösning

Planlösning:

Totalt ca 704 kvm där 560 kvm inryms på övervåningen i form av ombonade ytor med 144 kontorsrum, pentry samt mötesrum. I markplan finns industriytor med två industriportar samt en takhöjd om ca 7 m. samtliga ytor bjuder på rikligt med dagsljus tack vare det generösa antalet fönsterpartierna i lokalen.

Kommunikationer

Bussförbindelser finns längs med väg 288 som går parallellt med området. Du som hyresgäst har även snabb access till E4:ans på och avfarter samt välplanerade cykelvägar som med spikrak kurs leder dig hela vägen till Centralstationen och Uppsala City.

Kontakta Annonsör

Zouhair Ayed

Zouhair Ayed