Söderforsgatan 33 A

Kontor/Lager, 376 m2, Uppsala

Hyra: Kontakta annonsören

Här finns en fin lager- eller verkstadslokal med tillhörande kontor!
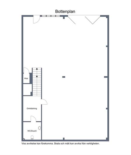
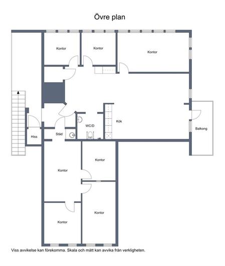
Här finns en fin lager- eller verkstadslokal om 216 m². Lokalen har en bra utformning, hög takhöjd på ca 6 m samt en rejäl port. Det finns omklädningsrum samt WC med dusch i lagerlokalen. Från lagret finns trappa och hiss upp till ett kontor med hög standard. Kontoret har ett välutrustat kök med stor öppen yta och även utgång till balkong mot Fyrisån. I övrigt finns 7 rum för kontor och/eller möten, ett fint rymligt WC-rum som uppfyller tillgänglighetskrav, ett litet städförråd samt ett kontorsförråd.

Omgivning

Omgivning/natur:

Librobäck är ett område i norra Uppsala med många moderna hus för lättare industri, kontor samt viss handel.

Företag i närheten:

I området finns en mindre lunchrestaurang (Kickis Food Corner). Det är även nära till Börjetull eller gamla Librobäck där Nelins stora matbutik ligger. I och omkring Börje tull finns flera lunchrestauranger och även café.

Planlösning

Planlösning:

Praktisk öppen lagerlokal med rejäl takhöjd (ca 6 meter) och endast en pelare i mitten. I markplan mot yttervägg finns ett omklädningsrum med WC/dusch.
Trappa och hiss leder upp till ett övre plan med kontor och personalytor med hög standard. Centralt i övre plan ligger ett stort och ljust kök/fikarum med utgång till balkong mot Fyrisån. I övrigt finns sju kontorsrum i varierande storlekar, en stilren kaklad RWC, städutrymme samt förråd.

Kommunikationer

Stadsbussar stannar längre upp på Söderforsgatan. Det är också smidigt att ta sig med bil till närliggande påfart till Bärbyleden som leder vidare till alla större vägar runt Uppsala. Cykelväg mot stan finns längs ån.

Kontakta Annonsör

Edvin Nicholls

Edvin Nicholls