Hållnäsgatan 3

Kontor/Lager, 281 - 396 m2, Uppsala

Hyra: Kontakta annonsören

Nybyggd lagerlokal med generös takhöjd i LIbrobäck!
Välkommen till denna nybyggda lagerlokal med en generös takhöjd och möjlighet att påverka planlösningen.
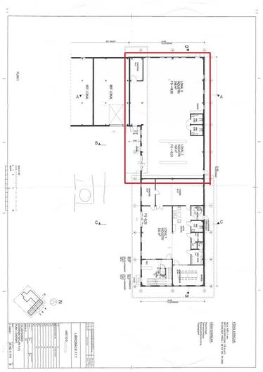
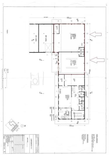
Idag har lokalen en öppen yta om 396 kvm och en takhöjd om ca 7,50 m. På tomten finns gott om parkeringar och det kommer finnas 12 st p-platser med laddningsstolpar.
Det finns även ett hyresledigt kontor om 281 kvm tillgängligt på samma fastighet om behovet finns.
Läget är lättillgängligt och i området är det blandade industri- lager och kontorsverksamheter. Från området är det goda kommunikationer till Uppsala centrum liksom E4:an och de andra större vägarna kring Uppsala. Här finns närhet till lunchrestauranger och god service vid Nelins och Mimi Ekholms plats.

För mer information och visning, kontakta ansvarig mäklare!

Omgivning

Omgivning/natur:

Librobäck är ett område med blandade verksamheter såsom mindre verkstäder, högteknologi, kontor och handel.

Företag i närheten:

Det finns mycket bra servie med Nelinsbytiken näsra sen finn även Icabutik, Apotek, Sushi mm vid Mimmi Ekholmstorg

Planlösning

Byggår:

1990

Planlösning:

Nybyggdt lager om 396 kvm med en generös takhöjd om ca 7.50 m. Det går att anpassa lokalen efter behov med tex entresol för tex kontor mm. Lokalen har två ingångar varav den ena är en port för in och utlastning.

Kommunikationer

Området har goda kommunikationer med Uppsala Centrum som ligger på ett avstånd om ungefär 4 km. Med bil ligger Bärbyleden även i nära anslutning till E4:an eller Enköping/Västerås.

Kontakta Annonsör

Edvin Nicholls

Edvin Nicholls