Norra vägen 40
Bosvedjan, Sundsvall, 602 m2
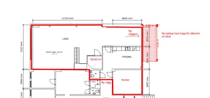
Flexibel lokal passande för butik alternativt lager. Bra inlastningsmöjligheter med hög port, personalutrymmen med kontor och lunchrum. Bra med parkeringar...
Kontor/Lager, 151 m2, Sundsvall, Bosvedjan
Fastigheten är belägen i Bydalen med närhet till både Sundsvalls centrum och Birsta. I anslutning till lokalen finns tillgång till P-platser. För mer information om lokalerna eller visning av dem, välkommen att höra av er till oss.