Dokument

Stadgar.pdf
Årsredovisning 2024.pdf

Rörvägen 57, Lokal 2

Industri/Kontor/Lager, 200 m2, Stockholm

Lokal nr 2 - Stockholms billigaste inredda Gavellokal säljs nu för ett kanonpris! Lokal med bästa läge ut mot Rörvägen

Lokal nr 2 - Stockholms billigaste inredda Gavellokal säljs nu för ett kanonpris! Lokal med bästa läge ut mot Rörvägen

BESKRIVNING

Stockholms billigaste inredda industrilokal med gavelläge (nr 2) säljs nu för ett kanonpris! Nu säljs lokal nr 2 för endast 1 895 000 kr (nr 2 gavellokal) med en yta om 200 kvm fördelat över 2-plan. För den som behöver en större lokal går det även att köpa grannlokalen för endast 1 795 000 kr (nr 4 lokalen bredvid gaveln) - även den på 200 kvm. Lokalerna har det bästa läget då de ligger längst ut mot Rörvägen, nr 2 är en gavellokal och nr 4 ligger bredvid denna vilket innebär att du med enkelhet kan öppna upp mellan lokalerna och få en stor och rymlig lokal om 400 kvm. För att maximera ytan på dessa lokaler går det också att bygga ett entrésolplan om 60 kvm per lokal. Lokalerna är belägna på Rörvägen 57 i Jordbro Företagspark i Brf Jordbro Park 57 som är en ekonomisk välskött förening med endast ca 21 mkr i belåning. Lokalen passar utmärkt för mindre industri, lager eller kontor. Fastigheten ligger i det största industriområdet i kommunen där över 170 företag har valt att etablera sin verksamhet i. Geografiskt sett ligger området perfekt med ca 20 min till centrala Stockholm och även ca 30 min ner till Nynäshamn och till den logistiska knutpunkten Norviks hamn.

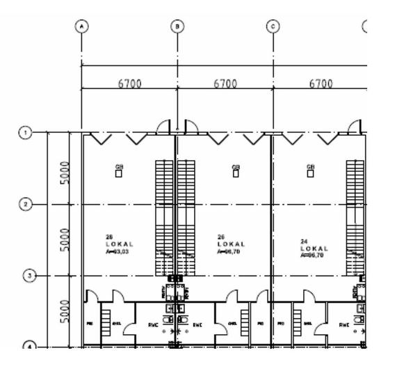
Lokalerna har vardera har en total area om 200 kvm fördelade på 2 plan. Lokalen har betonggolv på entréplanet med en gemensam oljeavskiljare, uppkopplad till kommunalt VA, indraget fiber. Det är vattenburet golvvärmesystem i entréplanet som ger en behaglig värme i lokalen. Vikportar av högsta kvalitet om 4,5x4,0 meter, takhöjden i lokalen är drygt 5 meter. Övre planet är inrett med ett snyggt innergolv, ett kök med vita luckor, diskmaskin, diskho. Badrum med grått klinkergolv och helkaklade väggar i vitt, wc och duschhörna. Gavellokalen (nr 2) har fönster längsmed hela kontorsplanet vilket ger ett mkt fint naturligt ljusinsläpp.

- Månadsavgift till föreningen är förnärvarande: 8 645 kr ex moms. Månadsavgift är inkl snöröjning, förvaltning, kostnad föreningslån, fastighetsförsäkring. Avgiften är ex moms samt tillkommande kostnad för värme, kall & varmvatten. Driftskostnad ca 1 200 kr/mån.

- Lokalen ligger inom inhägnat område där porten låses nattetid.
- Till lokalen hör 2-3 bilplatser, markerad ruta utanför portarna
- Oljeavskiljare samt vatten och avlopp finns installerat. Vattenburet golvvärmesystem. Lokalen har en egen separat mätare för eget el-abonnemang. Föreningen fakturerar (kommer på hyresavin) för värme och vatten.
- Vikportar av högsta kvalitet om 4,5x4,0 meter, takhöjden i lokalen är drygt 5 meter.
- Föreningen har tillgång till lastmaskin.

Köpare måste bedriva momspliktig verksamhet. Köparen måste bli godkänd medlem av styrelsen vid ett köp. Brf Jordbro Park 57 är en oäkta förening då alla lokalägare bedriver kommersiell verksamhet.

Pris:1 895 000 kr

Kontakta mäklaren vid intresse och för visning.

Stefan Sandin
Fastighetsmäklare
0704-675724
[email protected]
Locus Advice AB

LOCUS ADVICE

Locus Advice är ett fastighetskonsultbolag med fokus på kommersiella fastigheter och lokaler.
Vi arbetar med


  • Lokaluthyrning

  • Lokalöverlåtelser 

  • Fastighetsöverlåtelse

  • Transaktionsrådgivning

  • Värdering

  • Projektledning

  • Vi representerar även hyresgäster som vill ha hjälp med sitt lokalsökande.


Genom etablerade samarbeten med både stora och små fastighetsägare har vi tillgång till ett stort utbud av lokaler utöver vad vi kan marknadsföra i vår egen regi. Via dessa samarbeten kan vi med stor sannolikhet hjälpa er hitta den lokal ni söker efter.

Planlösning

Byggår:

2017

Antal rum:

2

Övrigt

Uppvärmning:

Golvvärme kopplad till fjärrvärme

Ventilation:

FTX system

Kontrakttyp:

Bostadsrättslokal

Pris/överlåtelseavgift:

1 895 000

Kontakta Annonsör

Stefan Sandin

Stefan Sandin