Rörvägen 32
Stockholm, 500 m2
Fastighet Till Salu i populära Jordbro Företagspark - medföljer en komplett sandblästringsanläggning Fastighet Till Salu i populära Jordbro Företagspark -...
Butik/Kontor/Lager, 90 m2, Stockholm
Hyra: Kontakta annonsören
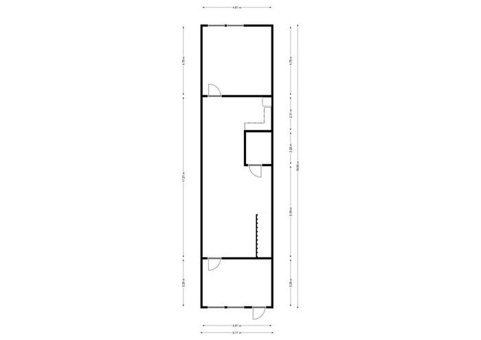
Lokalen är belägen på andra våningen med egen entré samt tillgång till personhiss.
BESKRIVNING
Kontor rumsindelat med två separata rum samt en större öppen yta. Vidare finns kök och ett fräscht helkaklat badrum med dusch. Här finns stor möjlighet att kunna sätta sin egen prägel på ytan. Möjlighet att hyra plats för container på fastigheten för det företag som har det behovet. Omgående tillträde eller enligt önskemål.
Varmhyra 12 000 kr/mån exkl. moms och egen el-förbrukning. Inkl. besittningsrätt.
Alternativt möjlighet att höra lokalen i andra hand tom 2027-09-30 med en varmhyra på 10 000 kr/mån exkl. moms och egen el-förbrukning.
OMRÅDET
Ältabergs industriområde är det senaste etablerade industriområdet i Nacka och omfattar i huvudsak småindustri och kontor samt en mindre del för handel t ex lunchrestaurang och blomsterbutik. En av anledningarna till varför området har blivit så omtyckt är närheten till motorvägspåfarterna mot Nacka, Tyresö och Nynäsvägen.
KOMMUNIKATION
Bilresan till Stockholm C tar ca 15 minuter. Med kollektivtrafiken tar du dig vidare med buss (ca 20 min) från Gullmarsplan och därefter en kortare promenad.
BOKA TID/VISNING
Vänligen respektera säljarens / hyresvärdens önskemål om bokad visning.
För mer information eller visning av objektet, hör av er till Locus Advice genom kontaktformuläret eller ring Joanna Eriksson på tel 08-558 094 43.
Växeln är öppen helgfria vardagar mellan 08.30-17.00
Locus Advice tel 08-558 094 40
LOCUS ADVICE
Locus Advice är ett fastighetskonsultbolag med fokus på kommersiella fastigheter och lokaler.
Vi arbetar med lokaluthyrning, lokalöverlåtelser samt projektuthyrning. Vi representerar även hyresgäster som vill ha hjälp med sitt lokalsökande.
Genom etablerade samarbeten med både stora och små fastighetsägare har vi tillgång till ett stort utbud av lokaler utöver vad vi kan marknadsföra i vår egen regi. Via dessa samarbeten kan vi med stor sannolikhet hjälpa er hitta den lokal ni söker efter.