Dokument

Planritning - Utgrunden 8, 2 509 kvm.pdf

Sturkögatan 8

Industri/Kontor/Lager, 2509 m2, Malmö, Östra Hamnen

Hyra: Kontakta annonsören

Kyl- och fryslager med tillhörande kontor - optimalt för livsmedelslogistik, foodservice-distribution, storkök eller producenter av kyl- och frysvaror

Nu finns möjlighet att hyra en välutrustad lagerlokal inklusive kontor om totalt 2 370 kvm, perfekt för livsmedelstransport och kylvaror.

Lokalens fördelar:


  • Effektiv lagerhantering- anpassade ytor för livsmedelslogistik:


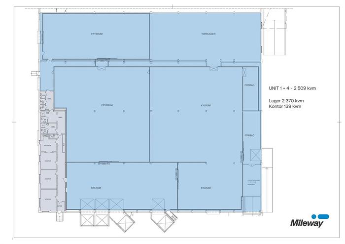
    • Frysrum: 735 kvm

    • Kyllager: 1 030 kvm

    • Torrlager: 300 kvm

    • Truckrum: 50 kvm




  • Utmärkta lastmöjligheter- 4 lasthus, varav 2 med sidoinlastning, samt 1 markport med truckrum och laddningsstation. Möjlighet att installera ytterligare 2 lasthus/lastportar.


  • Takhöjdenvarierar från ca3,6 upp till 4,4 meter.


  • Flexibla kontorsytor- 139 kvm kontor med tre rum för 8-10 personer, uppehållsrum med kök/pentry, omklädningsrum och WC.


  • Goda parkeringsmöjligheter- beläget inom inhägnat område med möjlighet att hyra till ett garage om 3 900 kvm. 


Läge och kommunikationer:


  • Strategiskt placerat- 3 km norr om centrala Malmö i ett väletablerat industriområde.

  • Snabb access- direkt anslutning till Västkustvägen, Inre Ringvägen och E6/E20/E22.

  • Goda kollektivtrafikförbindelser- bussförbindelser till centrala Malmö.

  • Service i närheten- handel, lunchrestauranger och annan service finns i området.

Denna fastighet erbjuder en optimal kombination av funktionalitet, logistik och säkerhet. Kontakta oss för mer information eller visning!

Omgivning

Företag i närheten:

PostNord, Mechanum, INR Försäljning Sverige AB, Exakta Print AB och Bring

Parkeringsmöjligheter/garage:

Goda parkeringsmöjligheter på fastigheten

Vägbeskrivning:

Nära anslutning till E6/E20 och E22

Planlösning

Fastighetsbeteckning:

Utgrunden 8

Byggår:

1962

Renoveringsår:

2013

Våningsplan:

1 av 1

Planlösning:

Se planritning bland bilder/PDF.

Kommunikationer

Goda kollektivtrafikförbindelser med buss till centrala Malmö

Service

Närservice:

Enklare serviceutbud av handel och lunchrestauranger i närområdet

Övrigt

Takhöjd:

4,4 m

Lokalen kan nås via:

4 lasthus + 1 markport (möjlighet till 2 portar till)

Kontraktlängd:

Förhandlingsbart

Kontrakttyp:

Förstahandskontrakt

Tillträde:

Omgående.

Kontakta Annonsör

Viktor Noring

Viktor Noring