Dokument

Krukskärvan 8_Mark.pdf

Stenyxegatan 34

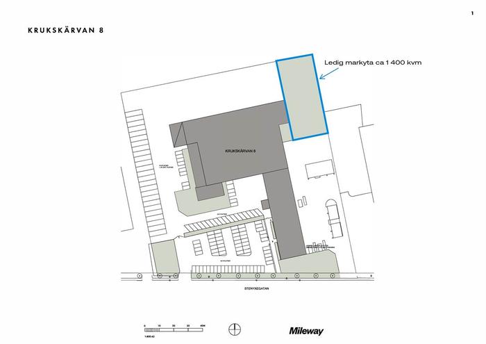
Lager/Mark/Övrigt, 1400 m2, Malmö, Fosie

Markyta för uppställning om ca 1 400 kvm hyrs ut i Fosie

Nu finns möjlighet att hyra en ca 1 400 kvm stor markyta med attraktivt och lättillgängligt läge i Fosie industriområde. Marken kan anpassas efter behov - exempelvis grusas, asfalteras och hägnas in - för att passa olika typer av verksamheter.

Ytan lämpar sig utmärkt för uppställning av större fordon, containers, maskiner eller som utomhuslager. Den kan även nyttjas för tillfälliga byggprojekt, entreprenadverksamhet eller som logistikyta för omlastning.

Fosie ligger cirka 10 kilometer sydost om centrala Malmö. Det ligger strategiskt placerat direkt intill de viktiga transportlänkarna E6, E65 och Inre Ringvägen med snabb access in och ut ur Malmö. Området präglas delvis av verkstäder men även av blandad företagsverksamhet inom lättindustri och handel. Jägerso Center finns inom nära räckhåll med stort serviceutbud av butiker och restauranger. Det finns goda kollektivtrafikförbindelser med buss till centrala Malmö.

Omgivning

Företag i närheten:

EKO, Scanfil, ABB, Byggmax, Ahlsell, ZooGiganten och Bilgalaxen

Parkeringsmöjligheter/garage:

Gott om parkeringsplatser på fastigheten (fri parkering), elbilsplatser

Skyltläge:

Bra skyltläge mot Stenyxegatan

Vägbeskrivning:

Direkt anslutning till E6, E65 och Inre Ringvägen

Planlösning

Fastighetsbeteckning:

Krukskärvan 8

Kommunikationer

Goda kollektivtrafikförbindelser med buss till centrala Malmö

Service

Närservice:

Jägerso Center finns inom nära räckhåll med stort serviceutbud av butiker och restauranger

Övrigt

Typ av kontrakt:

Arrende

Tillträde:

Omgående

Kontakta Annonsör

Ida Friggerdal

Ida Friggerdal