Dokument

Stiglädret 10_Byggnad A_Plan 1-2_Ritning.pdf

Sadelgatan 16

Industri/Kontor/Lager, 370 m2, Malmö, Elisedal

Hyra: Kontakta annonsören

Flexibel lager- och kontorslokal med markport i Elisedal

Välkommen till Sadelgatan 16 i Elisedal - ett strategiskt beläget industriområde i södra Malmö med närhet till E6, E65 och Inre Ringvägen. Här finns nu möjlighet att hyra en flexibel lokal om totalt 370 kvm, fördelad på 180 kvm lageryta i markplan och 190 kvm kontorsyta på två plan. Det finns goda möjligheter att anpassa och fräscha upp lokalen i samråd med ny hyresgäst.

Lagret har en generös takhöjd på sex meter samt egen markport som möjliggör smidig lastning och lossning. Kontorsdelen erbjuder en funktionell arbetsmiljö med tillgång till flera faciliteter såsom matsal/pentry, omklädningsrum, bastu och WC.

Fastigheten är belägen inom ett inhägnat område med stora uppställningsytor och goda parkeringsmöjligheter, vilket skapar en trygg och praktisk arbetsplats. Elisedal är ett väletablerat industriområde med god kollektivtrafik och närhet till Jägersro Center, som erbjuder ett brett utbud av service, butiker och restauranger.

Kort om lokalen:


  • Total yta: 370 kvm


  • Lageryta: 180 kvm (markplan)


  • Kontorsyta: 190 kvm (markplan och plan 2)


  • Takhöjd lager: 6 meter


  • Egen markport


  • Inhägnat område med uppställningsytor och parkering


  • Nära E6, E65 och Inre Ringvägen


Kontakta oss för visning och mer information!

Omgivning

Företag i närheten:

Tiles R Us, Täta Tak Entreprenad, Interni Kakelstudio, ZooGiganten och Bilgalaxen

Parkeringsmöjligheter/garage:

Parkering finns på fastigheten

Vägbeskrivning:

Direkt anslutning till E6, E65 och Inre Ringvägen

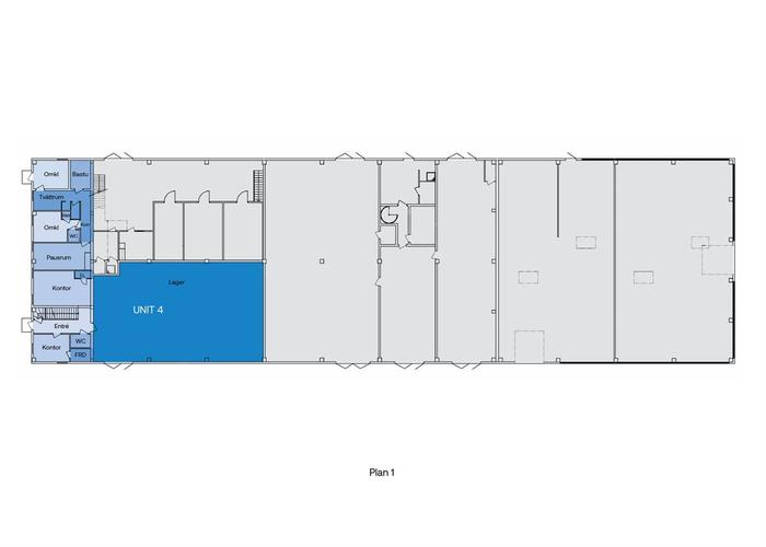
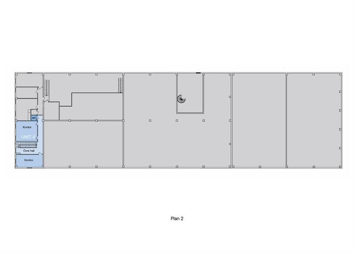
Planlösning

Fastighetsbeteckning:

Stiglädret 10

Byggår:

1979

Våningsplan:

1

Planlösning:

Se planritning bland bilder/PDF.

Kommunikationer

Goda kollektivtrafikförbindelser med buss till centrala Malmö

Service

Närservice:

Jägerso Center finns inom nära räckhåll med stort serviceutbud av butiker och restauranger

Övrigt

Takhöjd:

6 m

Lokalen kan nås via:

1 markport + separat kontorsentré

Kontraktlängd:

Förhandlingsbart

Kontrakttyp:

Förstahandskontrakt

Tillträde:

Enligt överenskommelse

Kontakta Annonsör

Jennie Hansen

Jennie Hansen