Kopparbergsgatan 4

Kontor/Lager, 280 m2, Malmö, Södra innerstaden

Hyra: Kontakta annonsören

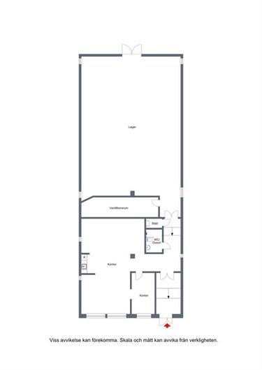
Kontorslokal med stort lager
Nu erbjuder vi en välplanerade kontorslokal på bottenvåningen med stort lager, perfekt för företag som söker både kontorsutrymmen och lagerkapacitet.

Lokalen erbjuder ett trevligt kontorsrum för mindre möten och arbetsuppgifter, samt ett rymligt kontorslandskap för öppet arbetsflöde. Det stora lagret ger generösa förvaringsmöjligheter och kan anpassas efter verksamhetens behov. Med separat varuintag från baksidan och ingång från Kopparbergsgatan 4, har ni smidig tillgång till både kontors- och lagerytor.

Totalt omfattar lokalen 280 kvm, vilket ger gott om utrymme för olika typer av verksamheter. Ett perfekt alternativ för företag som behöver kombinerade ytor för både kontor och lager under ett och samma tak.

Välkomna att kontakta oss för mer information!

Omgivning

Omgivning/natur:

Annelund är ett bostadsområde i stadsdelen Södra Innerstaden, Malmö. Annelund ligger mellan Amiralsgatan och Sofielunds industriområde, öster om Lantmannagatan.
Området byggdes på 1950-talet. Det består mest av bostadsrätter men även en dels hyresrätter. Intill vår fastighet Kampen 25 ligger parken Enskifteshagen som är ett grönt område med mycket aktiviteter.

Parkeringsmöjligheter/garage:

Finns möjlighet till parkering på området och närliggande gator.

Kommunikationer

Busshållplats finns i anslutning till fastigheten. Triangeln når du på 10 min promenad eller 5 min cykeltur. Från Triangeln stationen tar du dig sedan vidare med tåg.

Service

Närservice:

I närområdet finns bland annat

- Restaurang

- Vårdcentral

- Skola

- Friskvård.

Övrigt

Tillträde:

Enligt överenskommelse

Kontakta Annonsör

Lokalgruppen

Lokalgruppen